Na sprzedaż 1.214.000zł - Mieszkanie
LOKALIZACJA – Ursus, ul. Dzieci Warszawy 29
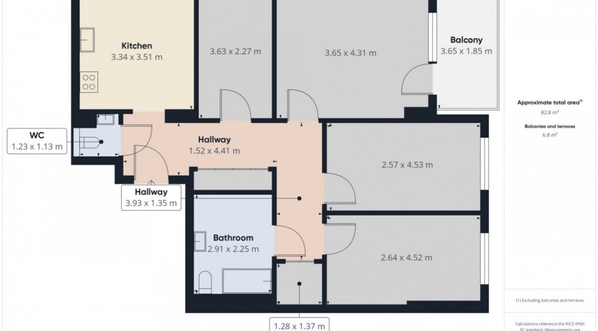
Na sprzedaż 4-pokojowe, funkcjonalne mieszkanie o powierzchni 86,7 m², zlokalizowane w Warszawie, Ursus, przy ul. Dzieci Warszawy 29.
* Przystanki autobusowe (517, 129, 191) – przy bloku
* Blisko tereny rekreacyjne: Park Achera oraz Stawy Cietrzewia
* W sąsiedztwie sklepy, punkty usługowe, restauracje i centrum handlowe Factory Ursus, Centrum Skorosze
* Bardzo dobra infrastruktura dla rodzin – szkoły, przedszkola, place zabaw
Lokalizacja zapewnia szybki dojazd do centrum Warszawy i dostęp do pełnej miejskiej infrastruktury.
OPIS MIESZKANIA – 86,7 m², 4 pokoje, oddzielna kuchnia, garderoba
Mieszkanie jest funkcjonalne, jasne i po odświeżeniu. Znajduje się w zadbanym budynku przy ul. Dzieci Warszawy 29.
W skład mieszkania wchodzą:
* Przestronny salon
* Oddzielna, widna kuchnia
* Trzy sypialnie (jedna wydzielona z salonu)
* Garderoba
* Łazienka po generalnym remoncie
* Oddzielna toaleta
* Przedpokój z dużą, pojemną szafą
* Balkon
Stan techniczny po odświeżeniu
* Drewniane podłogi w pokojach zostały świeżo wycyklinowane
* Mieszkanie zostało odmalowane
* Łazienka wykonana od nowa, w nowoczesnym standardzie
Układ idealny dla rodziny, osób pracujących zdalnie lub potrzebujących dodatkowej przestrzeni.
DODATKOWE INFORMACJE
* Cena mieszkania: 1 214 000 zł
* Miejsce postojowe w garażu podziemnym: 39 000 zł
Zapraszam na prezentację
- Piętro: 4
- Powierzchnia użytkowa: 86.70
- Liczba pięter: 6













