Na sprzedaż 650.000zł - Mieszkanie
| Mieszkanie w Topowej lokalizacji |
| 2-pok. | Kuchnia | 63 m2 | Piwnica |
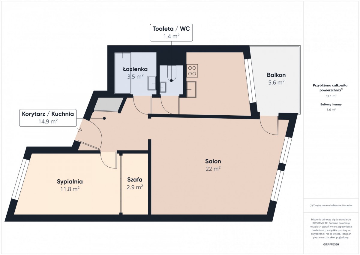
Zapraszam do zapoznania się z ofertą nieruchomości o pow. 63,6 m2 zlokalizowanej w bloku położonym w Ząbkach przy ul. Orlej 8. Mieszkanie znajduje się na drugim piętrze w trzy-piętrowym budynku z 2003 roku.
Blok położony jest w centralnej, świetnie skomunikowanej części Ząbek na kameralnym, zamkniętym osiedlu z placem zabaw dla dzieci.
Przepięknie nasłonecznione, dwustronne (północ-południe) mieszkanie które idealnie nada się pod wynajem, bądź do życia na co dzień dla pary lub rodziny z dzieckiem.
Mieszkanie o powierzchni 63,6 m2 składa się z:
– Oddzielnej kuchni z oknem – 7m2.
– Salonu z wydzieloną częścią jadalnianą – 22m2
– Przedpokoju z dużą szafą w zabudowie – 7,15 m2
– Sypialni z garderobą – 14,7 m2
– Oddzielnego WC – 1,4 m2
– Łazienki z wanną – 3,5 m2
– Loggi wychodzącej na południową stronę – 5,6 m2.
– Piwnicy – 1,7 m2
GŁÓWNE ATUTY NIERUCHOMOŚCI:
– Świetna lokalizacja – wszędzie blisko.
– Mieszkanie dwustronne – dobrze doświetlone: ekspozycja okien na północ i południe
– Plac zabaw na ogrodzonym osiedlu.
! ABSOLUTNIE TOPOWA LOKALIZACJA – WSZĘDZIE BLISKO !
– Przystanek autobusowy linii 199 – w odległości 100 metrów od bloku. W 20 minut dojedziesz do Metro Trocka.
– Stacja PKP Ząbki – w odległości 100 metrów od bloku. W 12 minut dojedziesz do Dworca Warszawa Wileńska.
– Przychodnia zdrowia, Stomatolog, Laboratorium Medyczne Multi-Lab – w odległości 100 metrów od bloku.
– Sklep spożywczy, Bazar Ząbki, Biedronka – w odległości 200 metrów od bloku.
– Park Miejski, Klub Tenisowy, Miejskie Centrum Sportu – BASEN, Boisko Piłkarskie Dolcan Ząbki – w odległości 500 metrów od budynku.
– Szkoła podstawowa nr 2 – około 500 metrów, Szkoła podstawowa nr 4 – 1 km.
– Publiczne przedszkole nr 2 – w odległości około 500 metrów od budynku.
– Żłobek – w odległości okolo 400 metrów.
– Restauracje, bary, pizzerie, Sushi, kręgielnia – w odległości 500 metrów od budynku.
Położenie mieszkania sprawia że jest to idealne miejsce do życia na co dzień jak i zarówno świetna oferta mieszkania na wynajem.
STAN PRAWNY: Pełna Własność z Księgą Wieczystą.
Czynsz administracyjny do wspólnoty: 330 zł.
MIESZKANIE SPRZEDAWANE BEZ MEBLI RUCHOMYCH
- Piętro: 2
- Powierzchnia użytkowa: 63.60
- Liczba pięter: 3















