Na sprzedaż 790.000zł - Mieszkanie
Na sprzedaż przestronne i słoneczne mieszkanie na Żoliborzu
Zapraszam do zapoznania się z ofertą dwupokojowego mieszkania przy ul. Włościańskiej 15!
To idealna propozycja dla osób ceniących przestrzeń, świetną komunikację oraz bliskość terenów zielonych. Mieszkanie jest jasne, narożne i ma bardzo funkcjonalny układ, dając wiele możliwości aranżacyjnych.
Najważniejsze informacje:
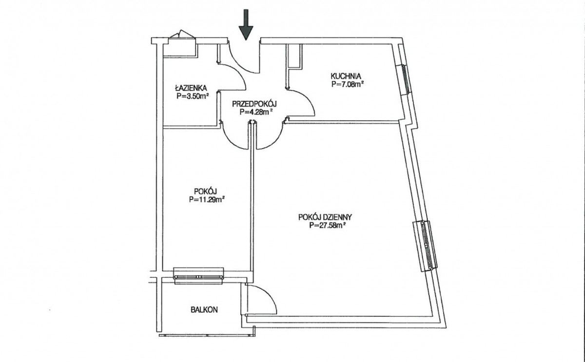
– Powierzchnia: 53,73 m²
– Liczba pokoi: 2
– Kuchnia: Oddzielna, z oknem
– Łazienka: Możliwość rozmieszczenia wanny
Ekspozycja okien:
Południowy zachód i południowy wschód – mieszkanie pełne naturalnego światła przez większość dnia!
Balkon:
Przestronna, niezabudowana loggia z widokiem na zieleń – idealne miejsce na poranną kawę czy odpoczynek po pracy.
Stan:
Do remontu – możliwość dostosowania wnętrza do swoich potrzeb!
Białe ściany stanowią wizualizację, aktualnie są słoneczno żółte 🙂
Budynek i udogodnienia:
– Mieszkanie znajduje się na 2. piętrze z 4 w budynku z 2009 roku.
– W dalszej perspektywie w planach budowa windy, która podniesie wartość nieruchomości o min. 30 000 zł, a także zwiększy komfort
– Bezpłatny parking naziemny z kartą mieszkańca.
– Możliwość dokupienia dwóch miejsc parkingowych w garażu podziemnym.
Lokalizacja – wszystko w zasięgu ręki!
Mieszkanie znajduje się w zielonej i doskonale skomunikowanej części Żoliborza.
Komunikacja:
Metro Marymont oraz przystanki tramwajowe i autobusowe w zasięgu 5-minutowego spaceru. Szybki dojazd do centrum – około 15 minut. W pobliżu również wjazd na S8, jednak mieszkanie pozostaje ciche.
Rekreacja:
Bliskość terenów zielonych: Glinianki Włościańskie, Park Olszyna, Park im. Zbigniewa Herberta – idealne miejsca na spacery, jogging czy odpoczynek.
Usługi i handel:
Galeria Żoliborz (Auchan, Rossmann, Pepco) – 280 m, Biedronka – 1 km, apteka – 450 m.
Pełna własność z Księgą Wieczystą – możliwość zakupu na kredyt. Nasz Doradca Kredytowy z chęcią pomoże przejść przez cały proces kredytowania bez stresu.
Cena: 790 000 zł
Czynsz administracyjny: 1090 zł/msc
Dodatkowe atuty:
Sprawdza się zarówno dla par, małej rodziny, jak i singla szukającego przestronnego mieszkania.
Nie przegap tej okazji!
- Piętro: 2
- Liczba pięter: 4







