Na sprzedaż 1.690.000zł - Mieszkanie
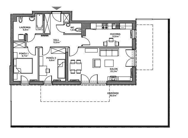
Mamy przyjemność zaprezentować mieszkanie na sprzedaż na Marinie Mokotów przy ul. Rajska o powierzchni 75,1 m2. Mieszkanie znajduje się na parterze, przynależy do niego ogródek (92,6 m2).
Mieszkanie jest przestronne, składa się z osobnej kuchni z oknem, salonu z wyjściem na ogród dwóch sypialni oraz dwóch łazienek ( jedna z wanną a druga z prysznicem). Dodatkowym atutem mieszkania jest wiele miejsc do przechowywania rzeczy.
Do mieszkania przynależy przestronna komórka lokatorska w wielkości 7 m2, która jest na tej samej KW, co lokal mieszkalny. Dodatkowo płatne miejsce postojowe w garażu podziemnym 50 000 PLN.
Mieszkanie wymaga odświeżenia, ale wykonane było z wysokiej jakości materiałów, drewniana podłoga, granitowe blaty kuchenne.
Osiedle Marina Mokotów to wyjątkowe miejsce, pełne zieleni, z jeziorkiem, parkiem oraz licznymi udogodnieniami na wyciągnięcie ręki:
10 minut samochodem do centrum Warszawy, Lotniska Chopina, Dworca Zachodniego, Galerii Mokotów, SGH, Politechniki Warszawskiej czy Mordoru.
Blisko Pole Mokotowskie – idealne na spacery, bieganie, jazdę rowerem lub wieczorne spotkania w pubach z grillem i muzyką na żywo.
Strzeżone i zamknięte osiedle zapewnia bezpieczeństwo i prywatność.
Sklepy, restauracje, winiarnia, spa, fryzjer, dentysta, apteka, bankomat, przedszkole oraz przychodnia Luxmed – wszystko dostępne na miejscu.
Dla aktywnych: ścieżki spacerowe i biegowe, klub fitness, park i jeziorko.
Zapraszamy do kontaktu w celu obejrzenia mieszkania w dowolnym dla Państwa terminie.
English version
We are pleased to present an apartment for sale located in Marina Mokotów on Rajska Street, with a total area of 75.1 m². The apartment is situated on the ground floor and includes a private garden of 92.6 m².
The apartment is spacious and consists of a separate kitchen with a window, a living room with access to the garden, two bedrooms, and two bathrooms (one with a bathtub and the other with a shower). An additional advantage of the property is the abundance of storage space.
The apartment also includes a spacious storage unit (7 m²) and a parking space in the underground garage (available for an additional fee of PLN 50,000).
The apartment requires refreshing, but it was finished using high-quality materials, including wooden flooring and granite kitchen countertops.
Marina Mokotów is a unique residential complex surrounded by greenery, featuring a lake, a park, and numerous amenities within easy reach:
10 minutes by car to Warsaw city centre, Chopin Airport, Warszawa Zachodnia railway station, Galeria Mokotów shopping centre, SGH Warsaw School of Economics, Warsaw University of Technology, and the business district known as “Mordor”.
Nearby Pole Mokotowskie park is perfect for walks, running, cycling, or evening meetings in pubs with barbecue and live music.
The gated and monitored estate ensures safety and privacy.
Shops, restaurants, a wine bar, spa, hairdresser, dentist, pharmacy, ATM, kindergarten, and a Luxmed medical clinic are all available on site.
For active residents: walking and running paths, a fitness club, park areas, and a lake.
We invite you to contact us to arrange a viewing at any time convenient for you.
- Liczba pięter: 7















