Na sprzedaż 1.350.000zł - Mieszkanie
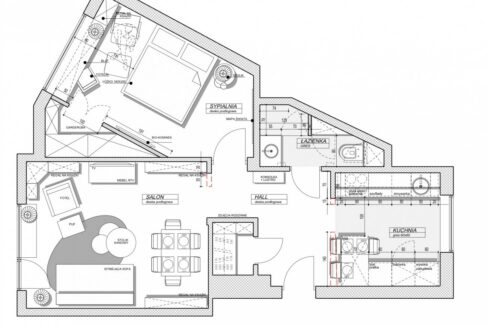
Na sprzedaż przestronne, dwupoziomowe mieszkanie o powierzchni 131 m², położone na 1. piętrze na zamkniętym, kameralnym osiedlu przy ul. Dworkowej w Starej Miłośnie (Wesoła).
Mieszkanie z dużym potencjałem aranżacyjnym – idealne dla rodziny lub inwestora. Lokal wymaga remontu, co daje możliwość urządzenia wnętrza według własnego gustu i potrzeb.
Najważniejsze informacje:
- powierzchnia: 131 m²
- liczba pokoi: 4
- piętro: 1
- układ dwupoziomowy
Układ pomieszczeń:
- przestronny salon
- oddzielne pokoje (idealne na sypialnie / gabinet)
- osobna toaleta
- łazienka
Dodatkowe atuty:
- balkon
- duży taras ok. 20 m²
- garaż
- zamknięte osiedle – bezpieczeństwo i spokój
- funkcjonalny, rodzinny układ pomieszczeń
Lokalizacja: Stara Miłosna – spokojna, zielona część Warszawy z dobrą komunikacją do centrum oraz pełną infrastrukturą (szkoły, sklepy, tereny rekreacyjne).
Cena: 1 350 000 zł
- Piętro: 1
- Liczba pięter: 2















