Na sprzedaż 1.100.000zł - Dom
Na sprzedaż połówka bliźniaka – mieszcząca się przy ul. Przewodowej w Warszawie – Miedzeszynie na bardzo ładnej działce o powierzchni 917 m2 w odległości ok. 1400m od stacji PKP Falenica i ok. 600m od zjazdu na Południową Obwodnicę Warszawy.
Dom został wybudowany w latach 50-tych. Składa się z 3 kondygnacji naziemnych i 1 podziemnej (dom jest częściowo podpiwniczony). Do budynku prowadzą 2 niezależne wejścia.
Główna część domu była dotychczas zamieszkana, a druga część była wykorzystywana do prowadzenia działalności biurowej.
Nieruchomość ma duże możliwości aranżacyjne.
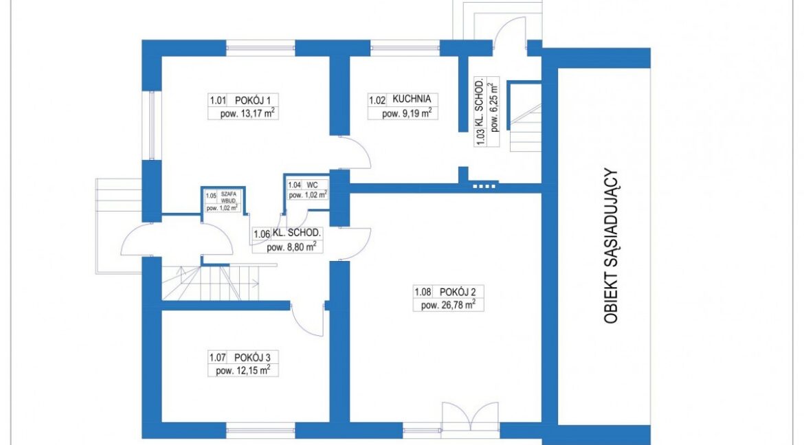
ROZKŁAD
PARTER (wysokość 3.05m2)
Pokój 1 13,2m2
Pokój 2 26,8m2
Pokój 3 12,2m2
Kuchnia 9,2m2
WC – 1,0m2
Hall/klatka schodowa 1 – 9,8m2
Klatka schodowa 2 – 6,2m2
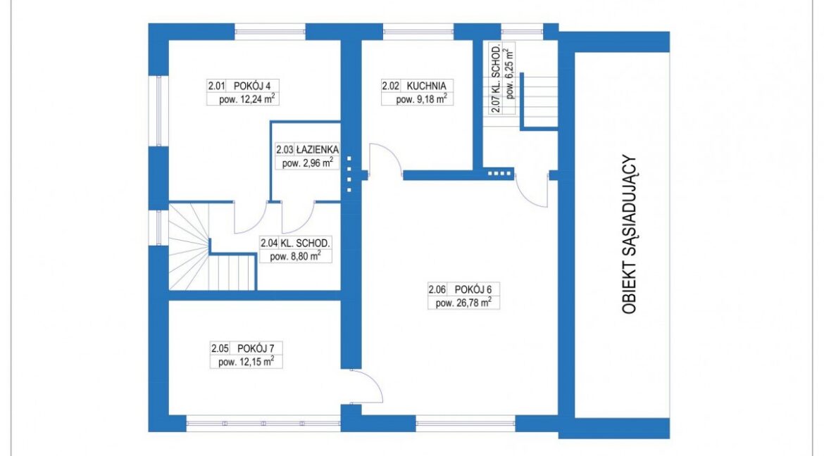
PIĘTRO 1 (wysokość 2.78 m2)
Pokój 4 – 12,2m2
POKÓJ 6 – 26,8m2
Pokój 7 – 12,2
Kuchnia 9,2m2
Łazienka 3,0m2
Klatka schodowa 1 8,8m2
Klatka chodowa 2 – 6,2m2
PODDASZE (wysokie – wysokość w najwyższym miejscu 4m)
Pokój (open space) 73m2
Łazienka. 5m2
PIWNICA
Pomieszczenie 1 – 15m2
Pomieszczenie 2 – 12,3m2
Klatka schodowa 9,1m2
Dom wymaga remontu.
Na działce znajduje się też wolnostojący garaż.
Załączone plany nie obejmują poddasza.
- Powierzchnia użytkowa: 210.00
- Powierzchnia działki: 917.00
- Liczba pięter: 2












