Na sprzedaż 710.000zł - Mieszkanie
Do sprzedaży duże mieszkanie o powierzchni całkowitej 88 m2 w Markach.
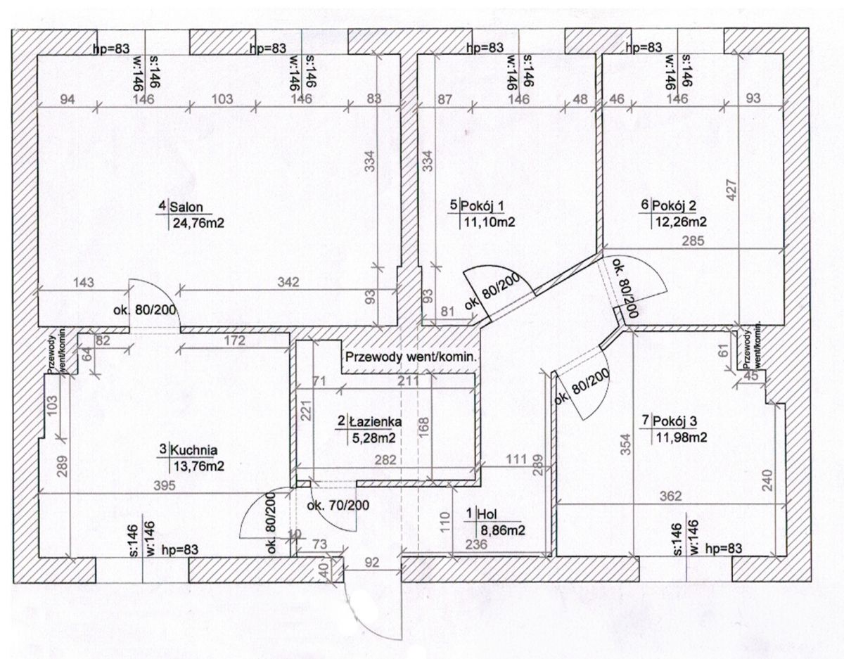
Mieszkanie powstało z połączenia 2 mieszkań i stanowi obecnie 4 pokojowe mieszkanie z widną kuchnią i łazienką.
POMIESZCZENIA Powierzchnia m2
Salon 24,76
Kuchnia 13,76
Sypialnia 1 11,10
Sypialnia 2 12,26
Sypialnia 3 11,98
Łazienka 5,28
Hall 8,86
Na podłodze ułożona mozaika drewniana.
Instalacja miedziana 2-przewodowa.
Ogrzewanie i podgrzewanie wody z własnej instalacji z piecem gazowym. Koszt gazu to około 770,- zł co 2 miesiące.
Czynsz administracyjny z funduszem remontowym dla 4 osób to 550,- zł z zaliczkami na wodę i wywozem śmieci.
Właściciele mieszkania korzystają z:
– 2 komórek lokatorskich zlokalizowanych na terenie osiedla. Komórki posiadają oświetlenie i gniazdka elektryczne
– garażu blaszanego i miejsca postojowego na betonowej płycie.
Budynek mieszkalny 2 piętrowy bez windy. Mieszkanie zlokalizowane na 2 piętrze. Wejście do mieszkania z zewnętrznej antresoli.
Pełna własność z Księgą Wieczystą. Możliwy zakup z kredytem.
Mieszkanie bardzo ciche w budynku zlokalizowanym na bardzo dużej działce.w związku z tym są duże odległości pomiędzy sąsiadującymi budynkami.
OKOLICA:
W najbliższej okolicy zlokalizowany jest stadion sportowy.
Sklepy spożywcze i przemysłowe, przedszkola, szkoły, żłobki, restauracje, bary.
w odległości 600-700 m znajdują się:
– Lidl
– Biedronka
– bary
– restauracje
– Poczta Polska
– złobki
– przedszkola
– szkoła podstawowa
– MCER Mareckie Centrum Edukacyjno-Rekreacyjne czyli obiekt edukacyjno-sportowy posiadający kryty basen, obiekty rekreacyjno-sportowe, centrum kulturalne, bibliotekę
Blisko do komunikacji miejskiej.
ZAPRASZAMY NA PREZENTACJĘ
- Piętro: 2
- Powierzchnia użytkowa: 88.00
- Liczba pięter: 2















