Na wynajem 30.000zł - Inny komercyjny
Na wynajem lokal handlowo-usługowy z dużymi witrynami w kamienicy w ścisłym centrum Warszawy przy alejach Jerozolimskich vis a vis Pałacu Kultury i Nauki.
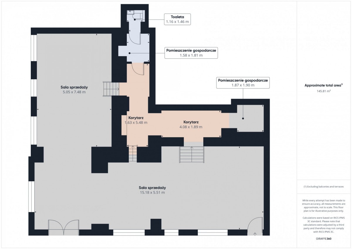
LOKAL
Lokal użytkowy o powierzchni 146 m2 z dużymi witrynami wychodzący bezpośrednio na aleje Jerozolimskie oraz ulicę Pankiewicza, przygotowany do własnej aranżacji pod działalność handlową, usługową lub kawiarnię.
Ogrzewanie: piec gazowy
Ciepłą woda: piec gazowy
Światłowód
BUDYNEK
Przedwojenna zabytkowa kamienica z 1881 roku.
OKOLICA
Topowa lokalizacja w centrum Warszawy.
Duży ruch pieszy i samochodowy
W pobliżu Dworzec Centralny i Złote Tarasy
Prestiżowa lokalizacja w sercu miasta, doskonały dostęp komunikacyjny, liczne sklepy, hotele i restauracje.
WYNAJEM:
Minimalny okres najmu: 3 lata
Kaucja: dwa miesięczne czynsze
Dodatkowo płatne opłaty eksploatacyjne: gaz, prąd, woda, wywóz śmieci
Czynsz najmu netto
Zapraszam na prezentację!
- Liczba pięter: 3











