Na sprzedaż 1.193.140zł - Inny komercyjny
Na Starym Mokotowie przy ul. Puławskiej czeka na Ciebie lokal 3-pokojowy o powierzchni 70,6 m² i wysokości ponad 300 cm, znajdujący się na 1 piętrze w kamienicy.
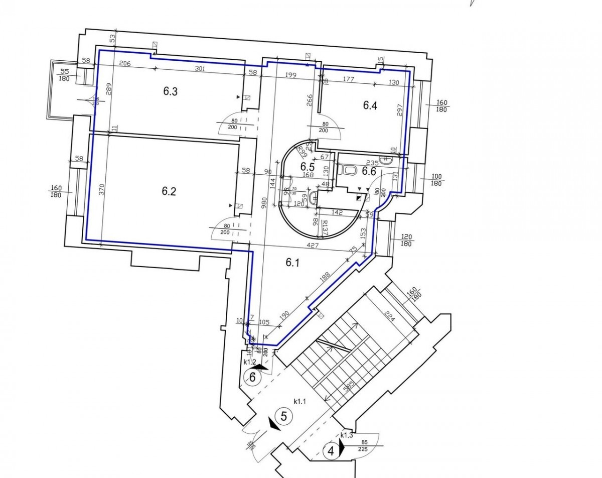
UKŁAD NIERUCHOMOŚCI:
- trzy pokoje (19; 14; 10 m²),
- kuchnia (5 m²),
- łazienka (3 m²),
- przedpokój (21 m²),
- archiwum (4 m²),
- balkon (wychodzący na główną ulicę -> dobrze widoczny szyld reklamowy).
Obecnie lokal wykorzystywany jest jako biuro. Na podłodze zachowano oryginalną cegłę w bardzo dobrym stanie. Drzwi do każdego pokoju wyposażone są w podwójne zamki, a w jednym z pomieszczeń znajduje się zabudowa z egzotycznego drewna na całej długości ściany. Nieruchomość posiada system alarmowy, klucze elektroniczne oraz centralkę.
BUDYNEK:
To 4-piętrowa kamienica z fasadami od ul. Puławskiej i Racławickiej, wybudowana w 1935 roku. Na klatce schodowej zachowane do dziś przedwojenne posadzki tzw. gorseciki. W planach jest modernizacja całej kamienicy.
NAJBLIŻSZE OTOCZENIE I LOKALIZACJA:
Lokal zapewnia stały, intensywny ruch pieszy i samochodowy przez cały dzień.
W bezpośrednim sąsiedztwie znajdują się Park Morskie Oko oraz prestiżowe zabudowania mieszkalne, liczne sklepy, kawiarnie i punkty usługowe. Łazienki Królewskie są w zasięgu kilkunastominutowego spaceru – okolica przyciąga zarówno mieszkańców, jak i turystów.
Doskonałe połączenia komunikacyjne:
Przystanki autobusowe (130, 141, 172, 222) i tramwajowe (4, 10, 14, 18, 35),
Stacja metra Racławicka – ok. 10 minut pieszo,
Plac Unii Lubelskiej – kilkanaście minut pieszo lub kilka minut komunikacją miejską.
DODATKOWE INFORMACJE
- ogrzewanie gazowe,
- parking na ulicy.
Nie czekaj, zadzwoń i umów spotkanie. To mieszkanie czeka właśnie na Ciebie.
- Piętro: 1
- Liczba pięter: 4












