Na sprzedaż 1.250.000zł - Dom
Wyjątkowy dom w zabudowie bliźniaczej — Twój komfort, przestrzeń i styl na wyciągnięcie ręki
Na sprzedaż bliźniak o powierzchni użytkowej około 150 m², usytuowany na działce 600 m² w malowniczej, spokojnej okolicy Duchnowa.
Dom budowany przez lokalnego dewelopera – z myślą o jakości, funkcjonalności i długotrwałym komforcie.
Układ pomieszczeń:
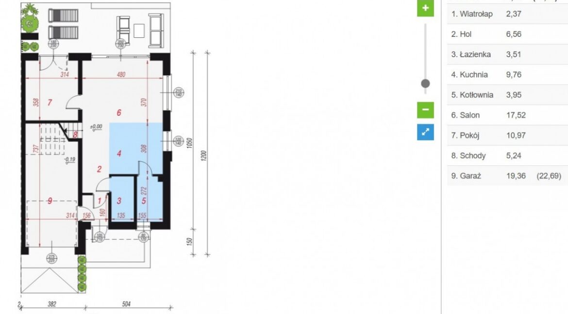
Parter
1. Wiatrołap: 2,37 m²
2. Hol: 6,56 m²
3. Łazienka: 3,51 m²
4. Kuchnia: 9,76 m²
5. Kotłownia: 3,95 m²
6. Salon: 17,52 m²
7. Pokój: 10,97 m²
8. Schody: 5,24 m²
9. Garaż: 22,69 m²
Piętro
1. Hol: 4,80 m²
2. Pokój: 14,73 m²
3. Pokój: 13,52 m²
4. Łazienka: 7,40 m²
5. Pokój: 12,38 m²
6. Pokój: 15,22 m²
Atut: dodatkowy pokój na parterze!!!
Ten pokój (ok. 10,97 m²) na parterze to nie tylko “spare room” — ma szerokie zastosowanie, świetnie sprawdzi się:
* jako **gabinet / home office**, jeśli pracujesz z domu,
* pokój gościnny, by mieć prywatność dla odwiedzających,
* pokój dla seniora lub nastolatka, który nie chce lub nie może wspinać się na piętro,
* przestrzeń hobbystyczna / do treningów, muzyki itd.
To naprawdę funkcjonalne rozwiązanie zwiększające użyteczność całego domu.
Standard i wyposażenie:
* Media: woda miejska, prąd, gaz, szambo, światłowód
* Instalacja rekuperacji – świeże powietrze, niższe koszty ogrzewania / chłodzenia
* Moc przyłączeniowa: 24 kW na jeden segment — bardzo solidne parametry
* Garaż wyposażony w bramę firmy Hörmann z napędem — komfort i bezpieczeństwo
* Strych docieplony wełną 20 cm — lepsza izolacja, mniejsze straty ciepła
Lokalizacja & dojazd:
– przyjemna, zielona miejscowość z niską zabudową — domy jednorodzinne, blisko natury, sporo ciszy, prywatności,
– blisko do tras szybkiego ruchu / dróg wojewódzkich/ krajowych
– komunikacja miejska: przystanki ZTM (linia 730) w Duchnowie – możliwość dojazdu transportem zbiorowym do Warszawy oraz do sąsiednich miejscowości,
– odległości z Duchnowa do granic Warszawy – kilka minut samochodem (w zależności od miejsca docelowego).
Dlaczego warto?
* Duża działka 600 m² daje przestrzeń: ogród, taras, relaks pod chmurką, prywatność
* Dom wybudowany przez lokalnego dewelopera — dobra znajomość lokalnych warunków, większa dbałość o wykonanie
* Świetny standard: rekuperacja, przyłącze elektryczne dużej mocy, garaż z markową bramą, izolacja dachu — oszczędności i wygoda przez lata
* Funkcjonalny układ wnętrz, w tym dodatkowy pokój na parterze — elastyczność użytkowania od zaraz
* Lokalizacja łącząca spokój i zieleń z łatwym dostępem do Warszawy i kluczowych komunikacyjnych tras.
- Powierzchnia działki: 600.00
- Liczba pięter: 2












