Na sprzedaż 1.080.000zł - Mieszkanie
Komfortowe mieszkanie 4-pokojowe 93,12 m² 12. piętro Smart Home Idealne dla rodziny
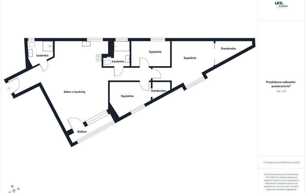
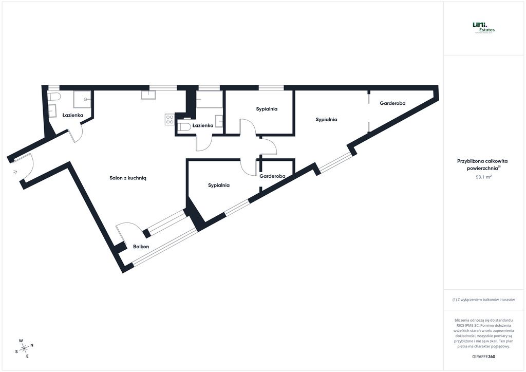
Na sprzedaż przestronne i funkcjonalne mieszkanie o powierzchni 93,12 m², położone na 12. piętrze w budynku na zamkniętym i bezpiecznym osiedlu. Nieruchomość została zaprojektowana z myślą o wygodzie codziennego życia oraz komforcie rodziny. Duża ilość przestrzeni, trzy niezależne sypialnie z garderobami oraz dwie łazienki zapewniają wygodę nawet dla większej rodziny.
Zdjęcia nie oddają wszystkiego, dlatego przygotowaliśmy dla Państwa spacer wirtualny 360! Zapraszam do cyfrowych odwiedzin – to najlepszy sposób, by poczuć klimat tego wnętrza i docenić jego wyjątkowy standard oraz przestrzeń.
Układ pomieszczeń:
- przestronny salon połączony z kuchnią i wyjściem na balkon,
- trzy niezależne sypialnie,
- dwie garderoby zapewniające dużą ilość miejsca do przechowywania,
- dwie odrębne łazienki:
- jedna z wanną,
- druga z prysznicem.
Wyposażenie:
- zabudowa kuchenna wraz ze sprzętem AGD:
- piekarnik,
- płyta indukcyjna,
- zmywarka 60cm,
- duża lodówka,
- pralka,
- system Smart Home,
- zainstalowana kamera (przed wejściem do mieszkania) z dostępem on-line i zapisywaniem nagrań na serwerze,
- funkcjonalne zabudowy i garderoby,
- klimatyzacja w salonie i sypialni.
Atuty nieruchomości:
- 12. piętro – zapewniające prywatność i atrakcyjny widok,
- balkon,
- trzy niezależne sypialnie,
- dwie łazienki,
- dwie garderoby,
- komórka lokatorska w cenie mieszkania,
- zamknięte i bezpieczne osiedle,
- idealny układ dla rodziny.
Informacje finansowe:
- cena mieszkania: 1 080 000 zł,
- dwa miejsca parkingowe: 60 000 zł (zakup jednego miejsca obligatoryjny),
- prowizja dla biura nieruchomości – dodatkowo płatna.
Dodatkowe informacje:
- mieszkanie dostępne do uzgodnienia,
- możliwość prezentacji po wcześniejszym umówieniu,
- idealna propozycja dla rodzin poszukujących przestrzeni, funkcjonalnego układu oraz nowoczesnych rozwiązań technologicznych.
Przedstawione ogłoszenie ma charakter wyłącznie informacyjny i nie stanowi oferty w rozumieniu art. 66 par. 1 Kodeksu cywilnego. Biuro nieruchomości dokłada wszelkich starań, aby treść ogłoszeń była rzetelna i aktualna, jednak nie ponosi odpowiedzialności za ewentualne błędy lub nieaktualność ogłoszenia.
Świadectwo charakterystyki energetycznej – zapotrzebowanie na energię:
EK – końcową (kWh/m2*rok): 72.65; EP – nieodnawialną energię pierwotną (kWh/m2*rok): 85.50; Comfortable 4-room apartment 93.12 m² 12th floor Smart Home Perfect for a family
For sale is a spacious and functional 93.12 m² apartment located on the 12th floor of a building in a gated and secure community. The property was designed with everyday convenience and family comfort in mind. The ample space, three separate bedrooms with walk-in closets, and two bathrooms ensure comfort even for a larger family.
Photos don’t do it justice, so we’ve prepared a 360-degree virtual tour for you! I invite you to visit digitally – it’s the best way to experience the atmosphere of this interior and appreciate its exceptional standards and space.
Room layout:
- spacious living room with kitchen and access to the balcony,
- three independent bedrooms,
- two wardrobes providing plenty of storage space,
- two separate bathrooms:
- one with a bathtub,
- the second with a shower.
Equipment:
- kitchen furniture with household appliances:
- oven,
- induction hob,
- dishwasher 60cm,
- large fridge,
- washing machine,
- Smart Home system,
- a camera installed in front of the entrance,
- functional built-ins and wardrobes,
- air conditioning in the living room and bedroom.
Advantages of the property:
- floor – providing privacy and an attractive view,
- balcony,
- three independent bedrooms,
- two bathrooms,
- two dressing rooms,
- gated and safe estate,
- the perfect arrangement for a family.
Financial information:
- apartment price: PLN 1,080,000,
- two parking spaces: PLN 60,000 (optional purchase),
- real estate agency commission – additional fee.
Additional information:
- apartment available upon request,
- presentation possible by prior arrangement,
- an ideal proposition for families looking for space, a functional layout and modern technological solutions.
This advertisement is for informational purposes only and does not constitute an offer within the meaning of Article 66, Section 1 of the Civil Code. The real estate agency makes every effort to ensure that the content of its advertisements is accurate and up-to-date. However, it is not responsible for any errors or out-of-dateness of the advertisement.
- Piętro: 12
- Liczba pięter: 16















