Na sprzedaż 990.000zł - Mieszkanie
Na sprzedaż przestronne, jasne mieszkanie 3-pokojowe o powierzchni 60,23 m² z dużym zadaszonym tarasem, komórką lokatorską oraz miejscem postojowym w garażu. Nieruchomość znajduje się w nowoczesnym budynku z 2018 roku z windą. Mieszkanie jest dwustronne i bardzo ciche – okna wychodzą na spokojną stronę osiedla.
LOKALIZACJA
Mieszkanie znajduje się przy ul. Książkowej na warszawskiej Białołęce, w sąsiedztwie ul. Światowida – jednej z głównych arterii komunikacyjnych tej części miasta.
Komunikacja i dojazd do centrum
• ok. 100 m od budynku znajdują się przystanki Stefanika – tramwaje 2 i 17 oraz autobusy 186 i 509,
• ok. 12 minut tramwajem do stacji metra Młociny,
• szybki dojazd do innych dzielnic Warszawy dzięki rozwiniętej sieci komunikacji miejskiej.
Punkty handlowo-usługowe
• naprzeciwko budynku znajduje się duży market Auchan,
• w odległości kilkuset metrów: Biedronka, Lidl, Rossmann, apteki oraz punkty usługowe,
• Galeria Północna – ok. 2,5 km (4 przystanki tramwajem).
Edukacja i opieka
• bardzo blisko znajdują się dwie publiczne szkoły podstawowe – ok. 50 m do wejścia na teren szkoły,
• w okolicy liczne przedszkola i żłobki,
STANDARD WYKOŃCZENIA
Budynek z 2018 roku, z windą i garażem podziemnym.
Atuty mieszkania
• piętro: 2 z 10,
• mieszkanie dwustronne i rozkładowe,
• brak bezpośrednich sąsiadów po bokach lokalu – większa prywatność,
• duży zadaszony taras ok. 17,85 m²,
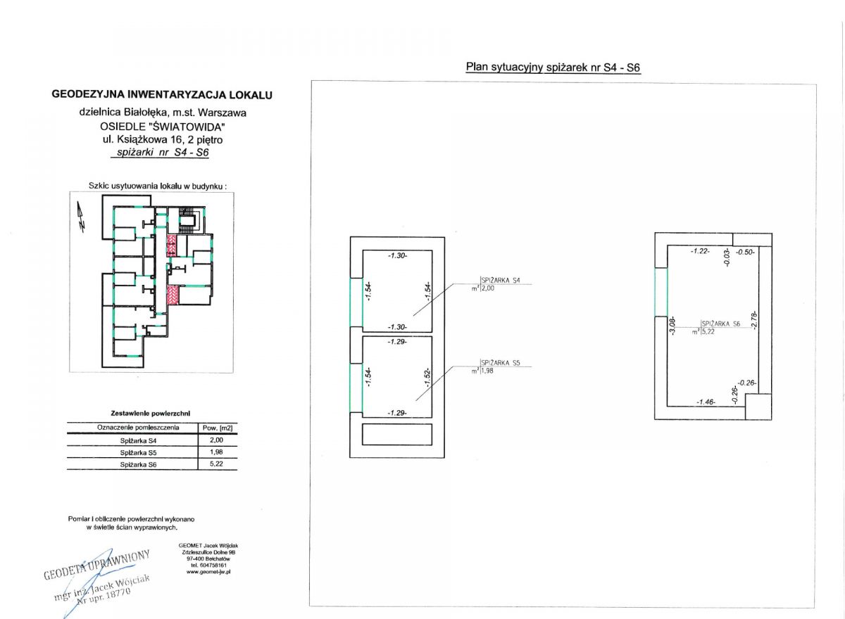
• komórka lokatorska (spiżarka) na piętrze – ok. 5,22 m² oznaczona na planie jako S6,
• miejsce postojowe w garażu (platforma).
Wyposażenie i wykończenie
• okna PCV,
• podłogi: łazienka – gres, reszta mieszkania – panele
• przestronna łazienka z wanną,
• zabudowa kuchenna oraz sprzęt AGD,
• zabudowy meblowe w mieszkaniu – możliwość pozostawienia wyposażenia dla nowych właścicieli.
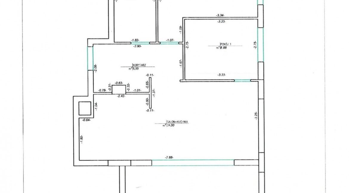
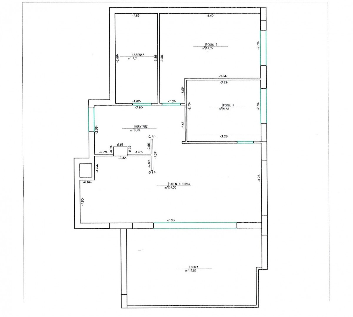
ROZKŁAD POMIESZCZEŃ (ok. 60,23 m²)
• Salon z aneksem kuchennym – ok. 24,00 m²
• Sypialnia – ok. 13,35 m²
• Sypialnia / pokój – ok. 8,88 m²
• Łazienka – ok. 7,01 m²
• Korytarz / przedpokój – ok. 6,99 m²
Dodatkowe powierzchnie
• Loggia / taras zadaszony – ok. 17,85 m²
• Komórka lokatorska (spiżarka S6) – ok. 5,22 m²
DODATKOWE INFORMACJE
• ekspozycja okien: pokój dzienny – południe, sypialnie – wschód
• Miejsce postojowe w garażu: 40 000 zł
• Czynsz administracyjny: ok. 1 200 zł
• Stan prawny: pełna własność
- Piętro: 2
- Powierzchnia użytkowa: 60.23
- Liczba pięter: 10















