Na sprzedaż 639.000zł - Mieszkanie
Zapraszam na DZIEŃ OTWARTY w najbliższą sobotę 15.11 w godz. 11.00-13.00. W celu umówienia spotkania proszę o wcześniejszy kontakt telefoniczny. Dla komfortu oglądających umawiam się na konkretne godziny.
Szukasz nieruchomości w samym centrum Warszawy — miejsca z duszą, które możesz urządzić po swojemu lub wykorzystać jako dochodową inwestycję?
To mieszkanie przy ul. Zgoda 3 będzie idealnym wyborem.
Lokal znajduje się w zabytkowej kamienicy o wyjątkowym klimacie, kilka kroków od Pałacu Kultury i Nauki. To adres, który łączy prestiż, historię i doskonałą komunikację.
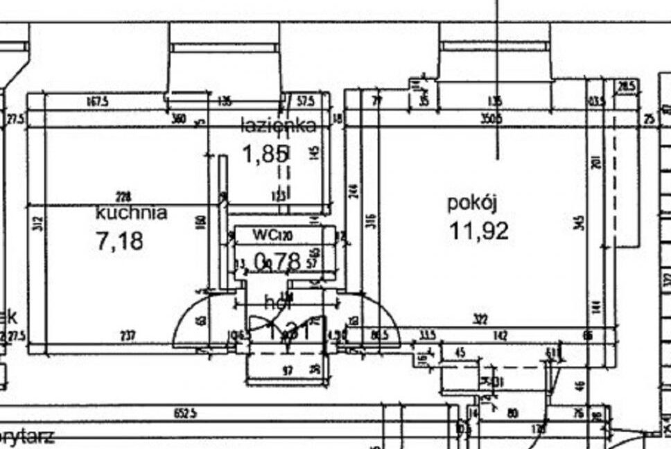
MIESZKANIE:
Lokal o powierzchni niespełna 26m2 znajduje się na pierwszym piętrze do którego wejdziemy wygodnymi schodami. Jego okna wychodzą na spokojne wewnętrzne patio od strony południowej gdzie znajdują się również lokale użytkowe. Poczucie przestrzeni potęguje wysokość mieszkania która wynosi około 350cm. Mieszkanie ma duży potencjał – można stworzyć tu funkcjonalną, komfortową przestrzeń pod wynajem lub dla siebie. Bardzo ciekawa propozycja na siedzibę firmy. Prestiżowy adres, zadbana kamienica i funkcjonalny układ sprzyjają prowadzeniu dochodowego biznesu. W ofercie zobrazowany jest zoptymalizowany układ mieszkania obrazujący jego przykładowy potencjał aranżacyjny: dwa pokoje. Stan: do generalnego remontu.
BUDYNEK I OTOCZENIE:
Kamienica, w której mieści się lokal, zachwyca reprezentacyjną klatką schodową i wyjątkową architekturą. To budynek z charakterem — położony w tętniącym życiem centrum, w otoczeniu klimatycznych kawiarni, restauracji i butików.
LOKALIZACJA:
Ulica Zgoda to jedno z najbardziej pożądanych miejsc na mapie Warszawy — tu wszystko jest w zasięgu spaceru: Pałac Kultury i Nauki, Dworzec Centralny, Złote Tarasy, Marszałkowska, kina, teatry, sklepy, urzędy i uczelnie. Ulica Zgoda przechodzi spektakularną przemianę w zielony, przyjazny deptak w ramach projektu Nowe Centrum Warszawy.
Dzięki rewitalizacji i nasadzeniu ponad 160 drzew, okolica zyska jeszcze bardziej prestiżowy charakter, co znacząco podniesie atrakcyjność nieruchomości. To lokalizacja, która daje pełen komfort życia i ogromny potencjał inwestycyjny.
KOMUNIKACJA:
Doskonały punkt komunikacyjny – w pobliżu znajdują się liczne przystanki autobusowe i tramwajowe, stacje metra Centrum i Świętokrzyska, a także Dworzec Centralny i Warszawa Śródmieście.
Stąd wszędzie jest blisko – pieszo czy komunikacją miejską.
STAN PRAWNY:
Pełna własność z księgą wieczystą, wolną od obciążeń.
Jeden właściciel. Możliwość zakupu zarówno za gotówkę, jak i w kredycie hipotecznym.
CZYNSZ:
Czynsz: ok. 690 zł + media (ok. 400 zł za elektrykę).
Zadzwoń i umów się na prezentację.
To wyjątkowe miejsce – idealne dla inwestora, singla lub pary, która marzy o życiu w samym sercu Warszawy.
- Piętro: 1
- Powierzchnia użytkowa: 25.84
- Liczba pięter: 3













