Na sprzedaż 7.300.000zł - Dom
Szukasz nieruchomości, która dostosuje się do Twojego życia?
Przy ul. Sytej na wilanowskich Zawadach prezentujemy unikatowy koncept architektoniczny: dwa niezależne domy połączone w jedną, imponującą bryłę.
To nieruchomość o dwóch obliczach (2 księgi wieczyste), która oferuje komfort wyboru i łączną powierzchnię ok. 449 mkw.
Jedna nieruchomość, wiele możliwości
Ta nieruchomość odpowiada na potrzeby najbardziej wymagających użytkowników.
• Dla rodziny wielopokoleniowej: gwarantuje bliskość rodziny, jednocześnie zapewniając każdemu niezależność i dostęp do strefy wspólnej
• Dla rodziców i młodych dorosłych: dzieci zyskują własną przestrzeń i garaż, pozostając w bezpiecznym sąsiedztwie
• Dla prestiżowego biznesu: jedna część to prywatny azyl, druga – reprezentacyjna siedziba firmy, kancelaria czy showroom
Stylowe wnętrza z przestrzenią do własnej aranżacji
Nieruchomość oferuje unikalne połączenie gotowych rozwiązań oraz przestrzeni do własnej kreacji.
– Wykończona baza: część pomieszczeń jest gotowa do wprowadzania i zachwycają detalami (loftowy beton, złota armatura). Wymagają jedynie doposażenia w meble na wymiar (stolarkę)
– Inwestycja w przyszłość: kilka pomieszczeń wymaga pełnego wykończenia, co otwiera drzwi do pełnej personalizacji układu i funkcji wnętrz
Światło, przestrzeń, detale
Dom wyróżniają panoramiczne okna, które wpuszczają dużo naturalnego światła przez cały dzień. Granica między salonem a ogrodem praktycznie znika, a jasna kolorystyka wnętrz oraz wysokie sufity dają poczucie przestrzeni i luksusu.
Sercem tej architektury jest reprezentacyjny, szklany łącznik, który zalewa wnętrza słońcem i oferuje nieograniczone możliwości aranżacyjne – od domowej galerii sztuki po całoroczny ogród zimowy.
Dopełnieniem całości jest duży, drewniany taras, który tworzy luksusową strefę relaksu pod gołym niebem i przyjazną, integrującą atmosferę, przypominając klimatyczne, prywatne patio.
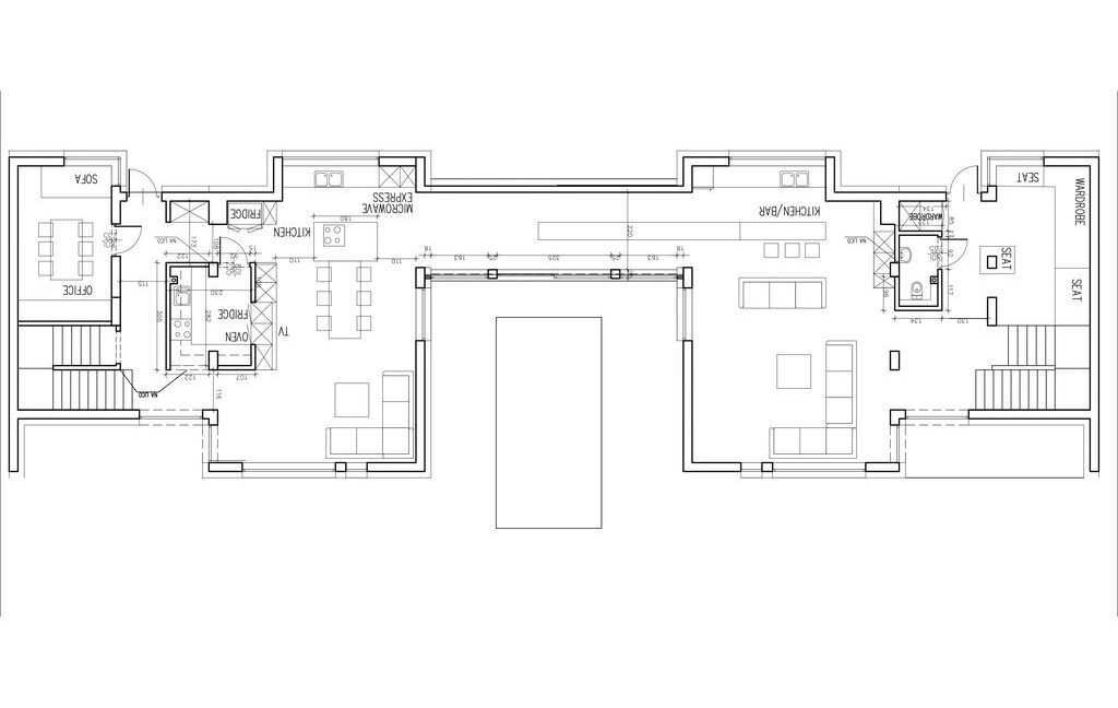
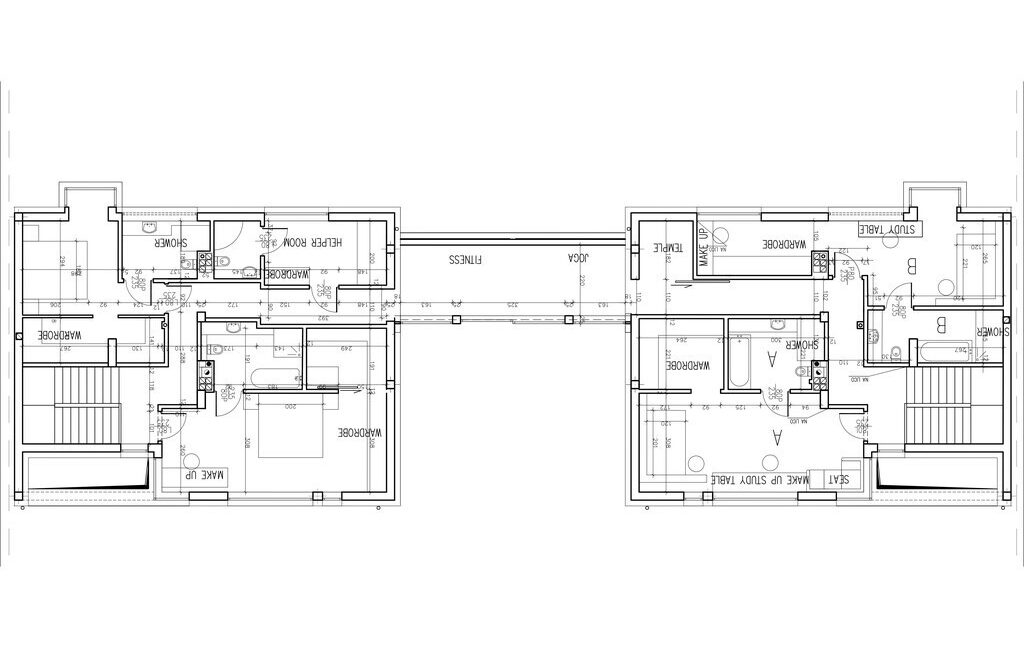
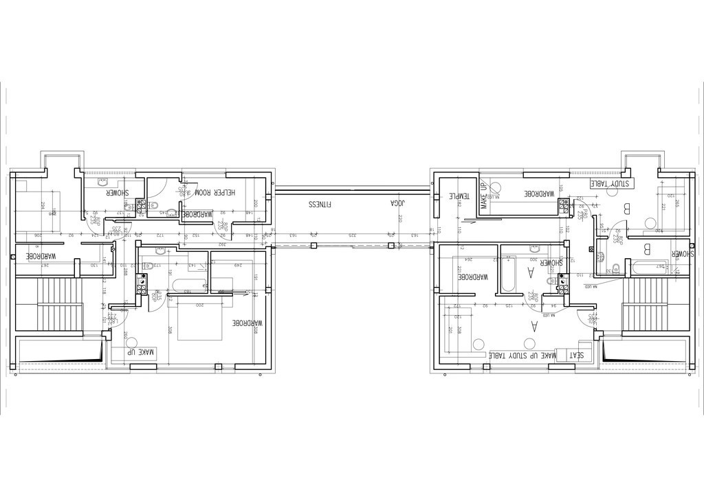
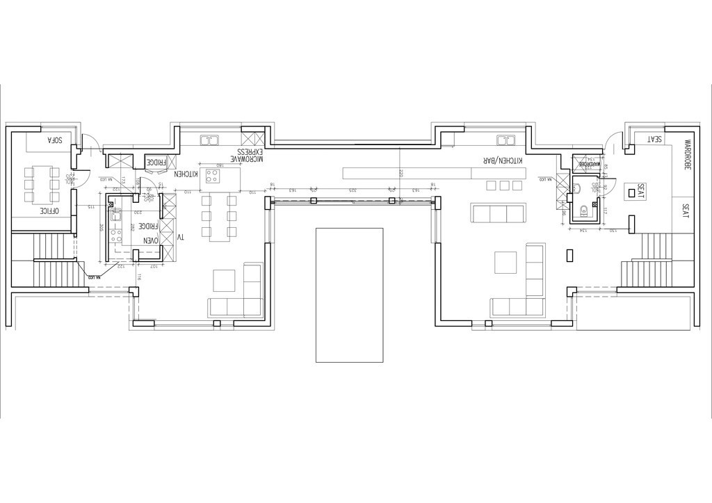
Poniżej szczegółowy układ pomieszczeń:
DOM 1
Poziom -1 (ok. 74,04 mkw.):
– garaż dwustanowiskowy,
– pomieszczenie gospodarcze,
– kotłownia
Parter (ok. 80,12 mkw.)
– salon,
– oddzielna brudna kuchnia,
– kuchnia główna (pomieszczenie z doprowadzonymi przyłączami, gotowe do pełnego urządzania kuchni lub adaptacji na inny cel),
– gabinet
Na piętro prowadzą stylowe schody.
Piętro (ok. 79,99 mkw.):
– 3 sypialnie typu Master (każda z łazienką i garderobą),
– dostęp do szklanego łącznika
Poddasze: Ogrzewany strych do dowolnej aranżacji
DOM 2
Poziom -1 (ok. 74,04 mkw.):
– garaż dwustanowiskowy,
– pomieszczenie gospodarcze,
– kotłownia
Parter (ok. 80,12 mkw.):
– reprezentacyjny hol (idealny pod recepcję),
– salon z aneksem kuchennym,
– toaleta
Na piętro prowadzą stylowe schody.
Piętro (ok. 79,99 mkw.):
– 2 sypialnie typu Master (każda z łazienką i garderobą),
– dostęp do szklanego łącznika
Poddasze: Otwarta przestrzeń magazynowa
Zawady – adres dla wymagających
Lokalizacja przy ul. Sytej to synonim prestiżu i spokoju, którego próżno szukać w centrum miasta.
• Enklawa ciszy: otoczenie niskiej zabudowy gwarantuje dyskrecję oraz poczucie bezpieczeństwa
• Bliskość natury: bezpośrednie sąsiedztwo terenów nadwiślańskich, ścieżek rowerowych i pól golfowych sprzyja aktywnemu wypoczynkowi
• Miejska wygoda: zaledwie kilka minut dzieli Cię od Placu Vogla, międzynarodowych szkół (m.in. British Primary School) oraz modnych restauracji Wilanowa
• Szybka komunikacja: dzięki Południowej Obwodnicy Warszawy zyskujesz sprawne połączenie z lotniskiem i pozostałymi dzielnicami stolicy
Czujesz, że Syta 160 to adres, którego szukasz?
Skontaktuj się z nami już teraz, aby umówić się na prezentację i poczuć wyjątkowy klimat tego miejsca.
Zapraszamy do kontaktu!
- Powierzchnia użytkowa: 330.00
- Powierzchnia działki: 621.00
- Liczba pięter: 2















