Na sprzedaż 949.000zł - Mieszkanie
Na sprzedaż 2-pokojowe mieszkanie o powierzchni 52,21 m2 znajdujące się na 5 piętrze w 7 piętrowym budynku z 2008 roku położonym na Warszawskim Mokotowie przy ul. Bobrowieckiej.
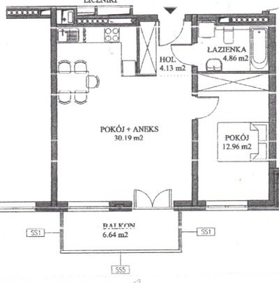
Rozkład pomieszczeń:
- hol
- salon z aneksem kuchennym
- sypialnia
- łazienka
- balkon
Dodatkowe informacje:
- Mieszkanie jednostronne, z ekspozycją południową.
- Po wejściu do mieszkania wita Państwa przedpokój z funkcjonalną szafą wnękową, zapewniającą mnóstwo miejsca na przechowywanie odzieży i innych przedmiotów.
- Kuchnia została wyposażona w zabudowę kuchenną, która nie tylko ułatwia codzienne gotowanie, ale także dodaje elegancji i funkcjonalności temu pomieszczeniu.
- Przestronna sypialnia z dużą szafą do przechowywania odzieży.
- Łazienka z wanną, wykończona w eleganckim stylu, zgrywająca się z resztą mieszkania.
- W bliskim sąsiedztwie znajdują się: Łazienki Królewskie, Park Sielecki, Park Morskie Oko, Lidl, Sadyba Best Mall oraz szkoły, restauracje, kawiarnie.
- Komunikacja: liczne przystanki autobusowe, metro Racławicka (w odległości 3km), linie tramwajowe w trakcie rozbudowy.
- Istnieje możliwość zakupu miejsca postojowego w garażu podziemnym.
Stan prawny: pełna własność z Księgą Wieczystą
Cena:
Mieszkanie 949 000zł
Miejsce parkingowe w garażu podziemnym 50 000 zł
To mieszkanie jest gotowe do zamieszkania, oferując komfortowe warunki życia dla jego przyszłych mieszkańców. Nie przegap tej wyjątkowej okazji – skontaktuj się z nami już dziś, aby umówić się na oglądanie tego mieszkania.
- Piętro: 5
- Liczba pięter: 7











