Na sprzedaż 1.490.000zł - Działka
Grunt na sprzedaż 6935m2 Wierzbica gm. Serock powiat legionowski.
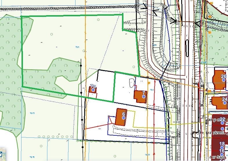
Teren inwestycyjny objęty MPZP – zabudowa jednorodzinna, dwulokalowa, bliźniacza i/lub zabudowa usług nieuciążliwych – symbol MN/U16.
Działka nr 75/5 obręb 0025 położona przy asfaltowej drodze publicznej.
Atrakcyjne umiejscowienie terenu około 260m od rzeki Narew, 50m od przystanków autobusowych i 100m od Ronda Rotmistrza Pileckiego łączącego drogę nr 62 z główną ulicą w Wierzbicy.
Tylko 900m do węzła łączącego drogę krajową 61 (Warszawa – Ostrołęka)z drogą 62 stanowiącej odcinek dużej obwodnicy Warszawy ( Płock – Sokołów Podlaski)
Nieregularny kształt. Wjazd od wschodu.
Przybliżone wymiary: od północy 92m, od południa 83,8m, od zachodu 62,9m, od wschodu 40m/81m.
Prąd przy działce, wodociąg około 20m od działki, gaz około 40m od działki.
Plan miejscowy przewiduje m.in.:
– maksymalna powierzchnia sprzedaży obiektów usług handlu na 600m2
-budynki w formie zabudowy wolnostojącej lub bliźniaczej,
-budynki do 3 kondygnacji naziemnych,
-wysokość zabudowy do 11m,
– maksymalny wskaźnik powierzchni zabudowy – 0,4
-minimalny udział powierzchni biologicznie czynnej 50%,
– minimalna powierzchnia działki budowlanej : 800m2 dla zabudowy wolnostojącej, 600m2 dla 1 segmentu w zabudowie bliźniaczej, 400m2 dla 1 segmentu w zabudowie grupowej, 200m2 dla zabudowy szeregowej,
– nieprzekraczalne linie zabudowy zgodnie rys. planu 6mod wschodu, 10m od północy.
Na działce znajduje się stary murowany budynek mieszk.- gospodarczy o powierzchni około 60m2 – do ewentualnego wykorzystania na czas budowy.
Wśród zdjęć znajduje się Projekt Zagospodarowania Terenu PZT przygotowany z myślą o umiejscowieniu tam budynku usługowego z następującymi parametrami:
powierzchnia zabudowy 950,92m2(13,71%)
powierzchnia utwardzona 2510,44m2 (36,20%) w tym geokrata 81,25m2,
powierzchnia biologicznie czynna 374,34m2 (50,09%)
Odległości:
– przystanki autobusowe 50-300m,
– szkoła, przedszkole 1500m
-park 1600m,
– Warszawa 25km,
– Legionowo 18km,
-Nieporęt 15km,
-Zegrze 11km.















