Na sprzedaż 10.400.000zł - Mieszkanie
EKSKLUZYWNY PENTHOUSE W SERCU MOKOTOWA
Panoramiczne okna | Przestronny taras na dachu | Spektakularny widok | Winda wjeżdża bezpośrednio do mieszkania | Dla najbardziej wymagających klientów
Niezwykle stylowy i luksusowy apartament, a miarą luksusu jest lokalizacja, niepowtarzalny widok z okien i niewiarygodny taras.
*****
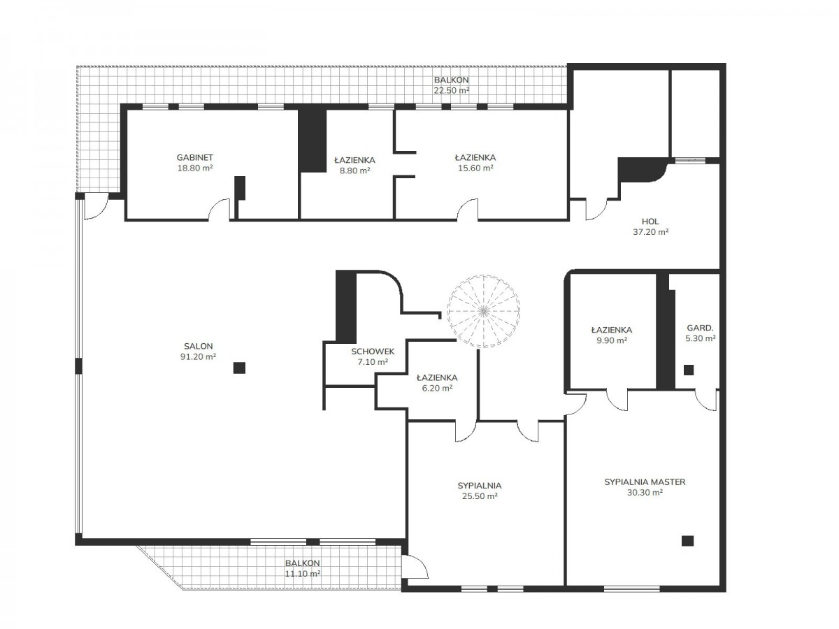
ROZKŁAD POMIESZCZEŃ:
W skład apartamentu wchodzą:
* Przestronny salon, płynie łączący się z jadalnią i kuchnią
* 3 przestronne sypialnie, każda z własną garderobą i łazienką,
* reprezentacyjny hol,
* gabinet,
* toaleta gościnna,
* pralnia.
Eleganckie, przeszklone schody prowadzą na spektakularny taras na dachu. To idealne miejsce na relaks, ogród, strefę fitness lub miejsce do spotkania w gronie najbliższych.
STANDARD:
Apartament położony na ostatnim piętrze w skrajnej części budynku, co zapewnia pełną prywatność i intymność, niedostępną w standardowych apartamentach miejskich.
Wnętrze łączy przestronną, rodzinną strefę dzienną z trzema sypialniami z łazienkami oraz eleganckim gabinetem, oferując komfort i prywatność porównywalne do willi miejskiej – luksusowa przestrzeń w samym sercu miasta.
Największą perłą jest ponad 160-metrowy taras na dachu, z którego rozpościera się niezmienny, panoramiczny widok na miasto i zieleń Górnego Mokotowa. To przestrzeń tak wyjątkowa, że oferuje doświadczenie prywatności, spokoju i swobody, którego nie znajdzie się w żadnym innym apartamencie w Warszawie.
BUDYNEK:
Penthouse mieści się w kameralnym, prestiżowym budynku z ochroną, portierem i elegancką recepcją.
Winda wjeżdża bezpośrednio do mieszkania, zapewniając maksimum komfortu i prywatności.
LOKALIZACJA:
Penthouse znajduje się w budynku w sercu Starego Mokotowa, w otoczeniu kameralnych, willowych uliczek, które nadają tej części miasta niepowtarzalny, elegancki charakter i wyjątkową atmosferę spokoju.
Jednocześnie lokalizacja zapewnia pełny dostęp do doskonale rozwiniętej infrastruktury komunikacji miejskiej, umożliwiając szybki i wygodny dojazd do każdego punktu Warszawy, łącząc intymność prywatnej przestrzeni z wygodą życia w sercu miasta.
DODATKOWE INFORMACJE:
* Winda wjeżdża bezpośrednio do mieszkania.
* Do apartamentu przynależą 2 miejsca postojowe w garażu podziemnym.
Zapraszam na prezentację!
- Piętro: 7
- Liczba pięter: 7






