Na sprzedaż 274.000zł - Działka
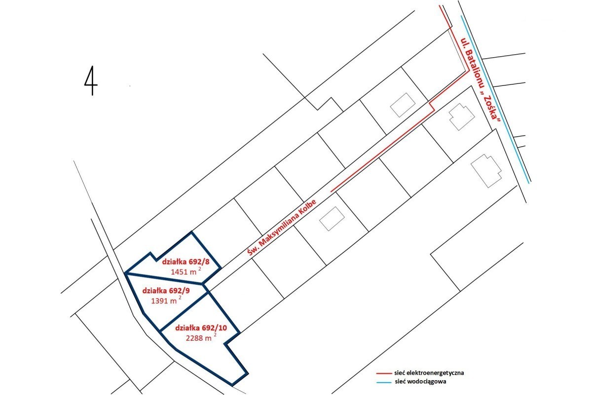
Na końcu ulicy św. Maksymiliana Kolbe w miejscowości Budy Zosine, gm. Jaktorów, znajduje się działka nr 682/10 z warunkami zabudowy – położona w ostatniej linii zabudowy, bezpośrednio przy rzece „Głęboka Struga”. To miejsce dla osób, które szukają działki pod posiadłość nad rzeczką.
Możliwości zabudowy
Działka posiada wydane warunki zabudowy, które pozwalają na budowę wygodnego domu jednorodzinnego:
maksymalnie 15% powierzchni zabudowy – około 343 m²
maksymalna wysokość budynku 9,5 m
dopuszczone poddasze użytkowe
minimum 70% powierzchni biologicznie czynnej
Istnieje możliwość zakupu działki sąsiedniej, co pozwala stworzyć ciekawą posesje nad rzeczką.
Lokalizacja i otoczenie
Ulica św. Maksymiliana Kolbe zakończona jest zawrotką, co ogranicza ruch do mieszkańców i gości. Sąsiedztwo rzeki oraz terenów zielonych daje poczucie przestrzeni.
przystanek PKS – ok. 300 m
sklepy, przychodnie i usługi – Jaktorów, ok. 3 km
Warszawa – ok. 35 km
Potencjał
Gmina Jaktorów dynamicznie się rozwija, a działki w tak unikalnym położeniu – ostatnia linia zabudowy i bezpośredni dostęp do rzeki – należą do najbardziej poszukiwanych. To propozycja zarówno do zamieszkania, jak i jako bezpieczna forma lokaty kapitału w gruncie.










