Na sprzedaż 6.800.000zł - Działka
::W kilku słowach
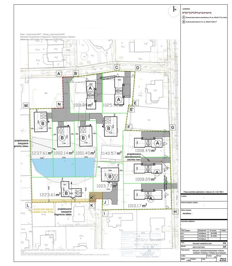
Wyjątkowa oferta inwestycyjna. Działka 11.744m2 objęta Planem Zagospodarowania Przestrzennego.
W pełni uzbrojona (gaz, woda, prąd oraz kanalizacja już na działce)
W absolutnie unikatowym otoczeniu, z licznym kilkudziesięcioletnim drzewostanem, z własnym kameralnym stawem.
W trzeciej linii zabudowy od ulicy Granicznej oraz Borówki.
Niespełna 1km od stacji PKP Warszawa Jeziorki, a jednocześnie 500m od Inwestycji Sportowy
Unikalne położenie pośród istniejącej, jednorodzinnej zabudowy.
Dojazd z od trzech ulic gwarantujący łatwe etapowanie inwestycji oraz optymalne zagospodarowanie terenu.
:: Warunki MPZP
Zabudowa jednorodzinna (także dwulokalową).
Minimalna wielkość działki: 1000m2
Maksymalna wysokość: 11m
Maksymalny zabudowa: 40%
Powierzchnia biologicznie czynna: 60%
Intensywność zabudowy: max 0,8
Dachy o kącie nachylenia 20-45 stopni
:: Koncepcja podziału / zabudowy:
Przygotowana koncepcja architektoniczna podziału na 11 samodzielnych działek.
Planowane 11 działek – optymalnie 8 budynków jednorodzinnych dwulokalowych oraz 3 budynki jednorodzinne wolnostojące.
PUM: ok. 3.500mkw,
Unikatowa nieruchomość, z niepowtarzalnymi walorami naturalnymi w tak bliskiej odległości od Warszawy.
Gotowa do zabudowy od razu po zakupie.
Sprzedaż bez podatku VAT.
Zapraszamy do kontaktu.
Takie oferty nie czekają długo na inwestora.
Plot of 11,744m2 covered by the Spatial Development Plan.
:: Advantages:
A unique location amidst existing single-family housing development,
Access from three streets,
A stand of trees several decades old,
A private pond adds charm to some of the planned plots,
The existing manor house is in good condition and should be preserved and included in the development concept.
:: Development plan conditions
Plot covered by the local spatial development plan – intended for single-family housing (also two-family houses).
Minimum plot size: 1000m2
Maximum height: 11m
Maximum build-up: 40%
Biologically active surface: 60%
Building intensity: max 0.8
Roofs with a slope angle of 20-45 degrees
:: Division/development concept:
Prepared concept of division into 9 or 10 plots,
Usable floor area: approx. 3100m2,
10 premises on 5 plots, 3-4 detached buildings and preservation of the current manor house.
: Media:
Gas
Electricity
Water
Sewerage
For more details please contact us or visit our website www.








