Na sprzedaż 205.000zł - Działka
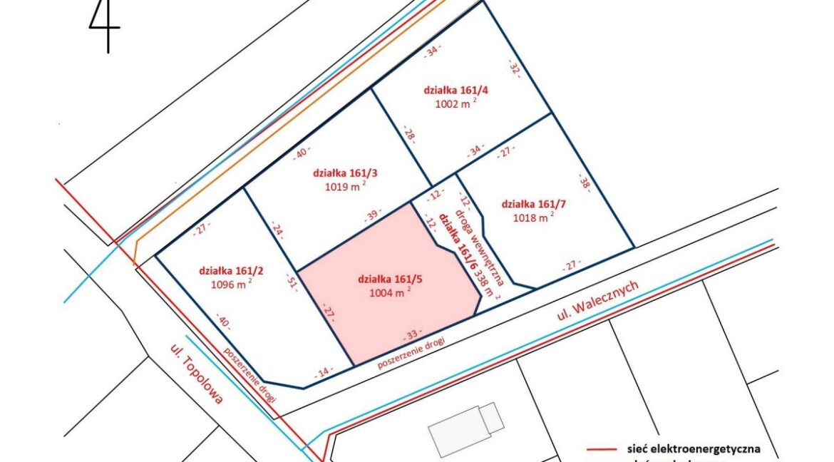
Na sprzedaż działka nr ewid. 161/5 o powierzchni 1004 m2 położona w kompleksie 5-ciu działek przy ul. Topolowej w miejscowości Grądy, gm. Jaktorów, powiat grodziski.
Teren płaski, suchy, w kształcie zbliżonym do prostokąta o wymiarach 30x33m.
MPZP
Teren objęty miejscowym planem zagospodarowania przestrzennego, przeznaczony pod zabudowę mieszkaniową jednorodzinną:
– wysokość budynku mieszkalnego maks. 3 kondygnacje ( w tym poddasze użytkowe i podpiwniczenie),
– min. 50% powierzchni biologicznie czynnej
– maks. powierzchnia zabudowy 30%,
– możliwość zabudowy gospodarczej, garażowej, usługowej ( usługi nieuciążliwe) jako obiektów samodzielnych,
– dopuszcza się użytkowanie parterów budynków mieszkalnych jako części usługowych
MEDIA
Linia wodociągowa oraz elektroenergetyczna biegną w drodze, bezpośrednio przy działce.
LOKALIZACJA I DOJAZD
W najbliższym sąsiedztwie luźna zabudowa jednorodzinna, tereny zielone oraz działki jeszcze nie zabudowane.
– 4km do stacji PKP Międzyborów ( linia kolejowa PKP Warszawa-Łódź)
– 6km do centrum Żyrardowa
– 7km do wjazdu na autostradę A2 ( węzeł Wiskitki)
Spokojna okolica, sąsiedztwo terenów zielonych, a zarazem szybki dostęp do kluczowych tras komunikacyjnych sprawia, że jest to oferta wyjątkowo atrakcyjna zarówno pod budowę własnego domu jak i pod inwestycję.
Oferujemy do sprzedaży również sąsiednie działki z tego kompleksu.
Lokalizacja bardzo dokładnie zaznaczona na mapie. Zapraszam do kontaktu i na prezentację w terenie.











