Na sprzedaż 174.000zł - Działka
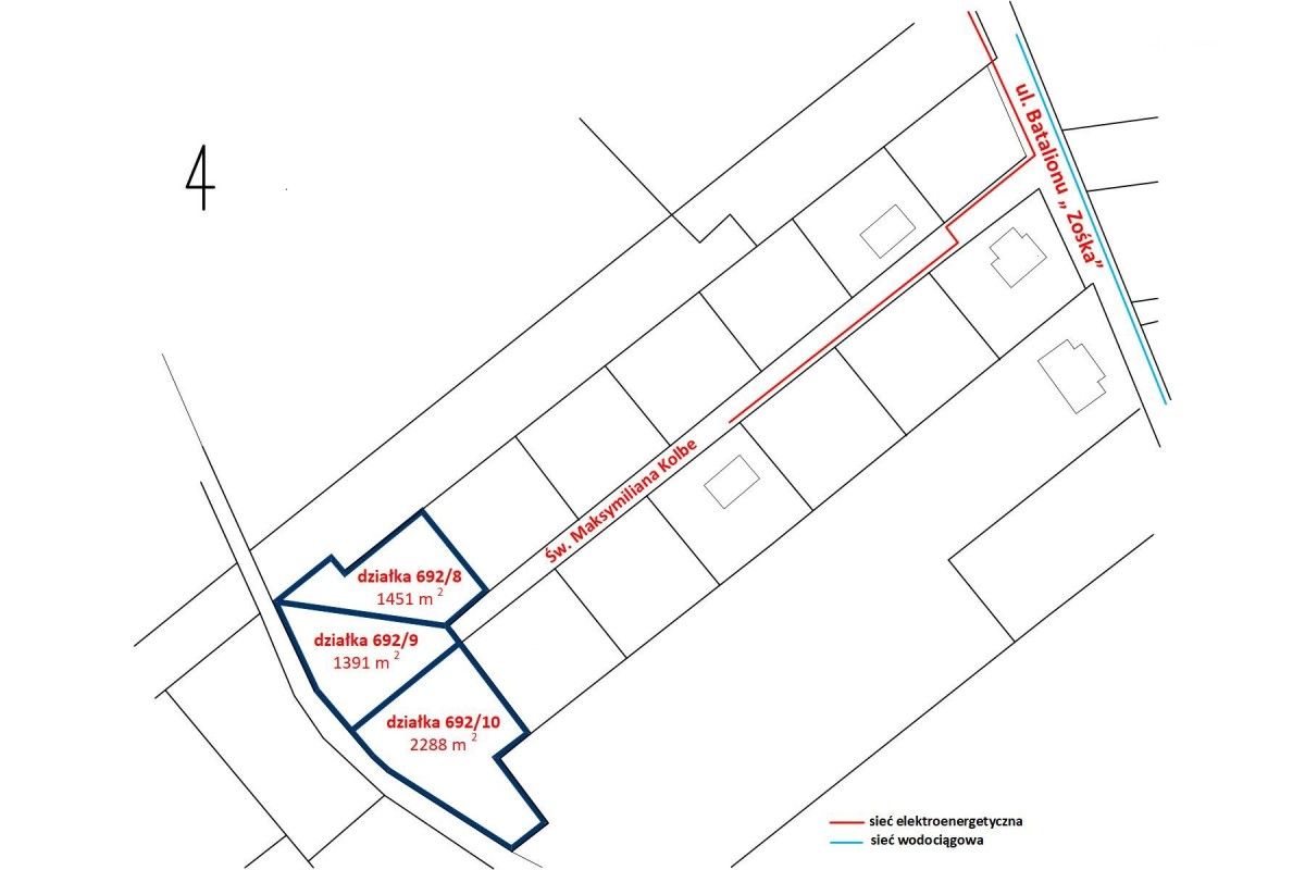
Na sprzedaż działka budowlana 2288m2, położona w Budach Zosinych gm. Jaktorów.
Na końcu spokojnej ulicy, tam gdzie kończy się ruch samochodów, znajduje się działka o nr ewid. 682/10 z warunkami zabudowy – położona w ostatniej linii zabudowy, bezpośrednio przy rzece Głęboka Struga. To miejsce dla osób, które szukają działki pod dom nad rzeczką.
MOŻLIWOŚCI ZABUDOWY
Działka posiada wydane warunki zabudowy, tzw. WZ-tkę, które pozwalają na budowę wygodnego domu jednorodzinnego:
* maksymalnie 15% powierzchni zabudowy – około 343m²
* maksymalna wysokość budynku – 9,5 m
* dopuszczone poddasze użytkowe
* minimum 70% powierzchni biologicznie czynnej
Istnieje możliwość zakupu działki sąsiedniej, co pozwala stworzyć większą nieruchomość i na niej większy dom.
LOKALIZACJA I OTOCZENIE
Ulica św. Maksymiliana Kolbe biegnąca przy wydzielonych działkach zakończona jest tzw. zawrotką, co ogranicza ruch tylko do mieszkańców i ich gości. Sąsiedztwo rzeki oraz terenów zielonych daje poczucie spokoju i przestrzeni.
* najbliższy przystanek PKS – ok. 300 m
* sklepy, przychodnie i usługi – Jaktorów, ok. 3 km
* Warszawa – ok. 35 km
POTENCJAŁ INWESTYCYJNY
Gmina Jaktorów dynamicznie się rozwija, a działki w tak unikalnym położeniu – ostatnia linia zabudowy i bezpośredni dostęp do rzeki – należą do najbardziej poszukiwanych. To propozycja zarówno do zamieszkania, jak i jako bezpieczna forma lokaty kapitału w gruncie.









