Na sprzedaż 980.000zł - Mieszkanie
MOKOTÓW Mieszkanie dwupokojowe z garażem SPRZEDAŻ
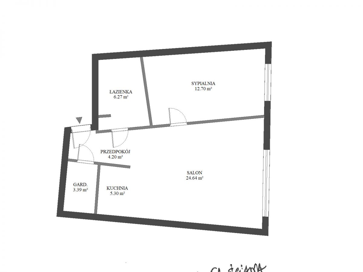
Ciche, umeblowane mieszkanie na ul. Woronicza ma powierzchnię 56,5 m2 składa się z:
- salonu z ogromnymi oknami o powierzchni: 24,64 m2
- aneksu kuchennego o powierzchni: 5,30 m2
- sypialni o powierzchni: 12,70 m2
- garderoby o powierzchni: 3,39 m2
- łazienki o powierzchni: 6,27 m2
……………………………………………………………………………….
ŁĄCZNA powierzchnia mieszkania: 56,5 m2
Mieszkanie znajduje się na piętrze IX w budynku XI piętrowym.
Z okien rozpościera się piękny widok na zieleń na patio.
Miejsce garażowe jest na poziomie -1 dodatkowo płatne – 60 tyś zł
Zapraszam na prezentację
- Piętro: 9
- Powierzchnia użytkowa: 56.50
- Liczba pięter: 11













