Na sprzedaż 949.000zł - Mieszkanie
Najważniejsze zalety tej nieruchomości:
– mieszkanie po przeprowadzonym generalnym remoncie (obejmującym także wymianę instalacji elektrycznej oraz wodno – kanalizacyjnej i położenie gładzi na ścianach) dzięki czemu można w nim od razu zamieszkać,
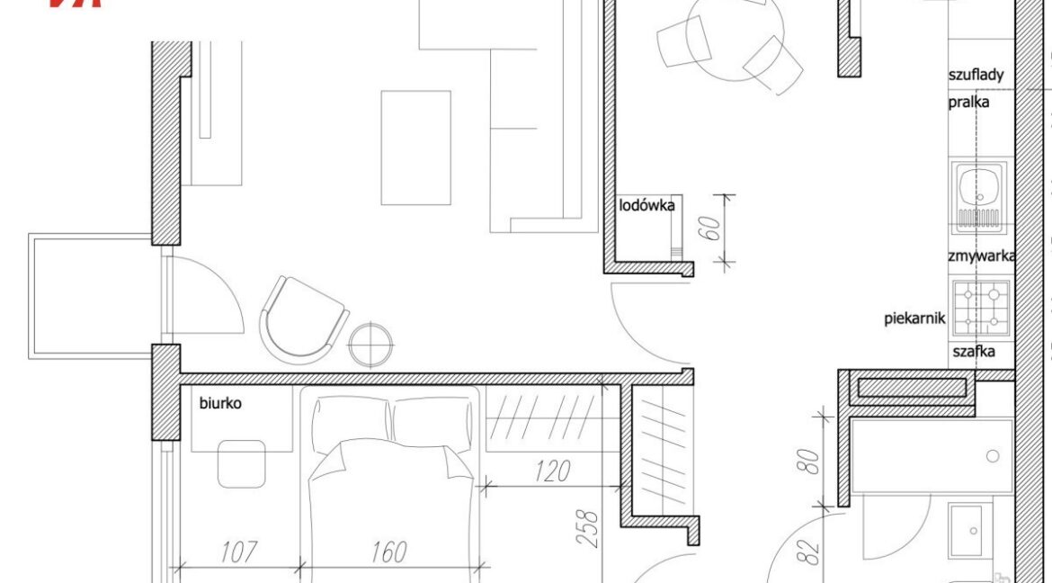
– na metrażu 48,2 m2 zaaranżowano dwie sypialnie, otwartą przestrzeń obejmującą jadalnię z aneksem kuchennym oraz łazienkę, w wyniku czego, mieszkanie jest niezwykle przestrzenne,
– narożny układ mieszkania, (jedynie ściana kuchenna i łazienka graniczy z sąsiadem) oraz ostatnie piętro, sprawia, że mieszkanie jest idealne dla osób ceniących ciszę i spokój,
– balkon oraz genialny widok na Warszawskie City, zapewniają przestronną panoramę Śródmieścia,
– mieszkanie z założoną księgą wieczystą, dzięki czemu, można zakupić go posiłkując się kredytem hipotecznym,
– dla miłośników porządku i harmonii w mieszkaniu, piwnica będzie nieodzownym atutem ( powierzchnia 2,65 m2)
– komfort mieszkańców poprawiają dwie nowe windy oraz monitoring,
– doskonała komunikacja miejska, zapewniająca komfortowe poruszanie się po Śródmieściu oraz w każdą stronę Warszawy (liczne tramwaje i autobusy, do stacji metra zaledwie 1,3 km (zarówno do stacji Ratusz Arsenał jak i Rondo Daszyńskiego).
Zapraszam na prezentację
- Piętro: 10
- Powierzchnia użytkowa: 48.20
- Liczba pięter: 10












