Na sprzedaż 2.800.000zł - Dom
Klimatyzowany | Wysokie klatki schodowe | Duży salon z wyjściem do ogrodu | Sześć oddzielnych sypialni | Bardzo dobry stan techniczny
*****
ROZKŁAD POMIESZCZEŃ:
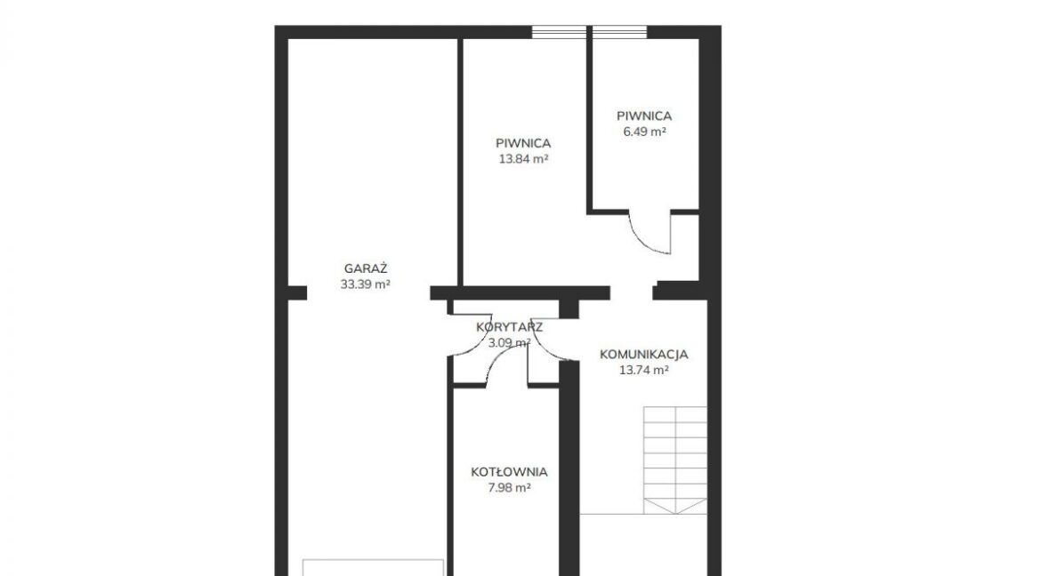
Przyziemie:
* Dwa pomieszczenia mogące służyć jako archiwum i serwerownia,
* pomieszczenie socjalne z aneksem kuchennym (dom ostatnie lata wynajmowany był na cele biurowe)
* sala konferencyjna,
* pomieszczenie gospodarcze.
(możliwość przywrócenia garażu na 2 auta)
* Salon,
* toaleta.
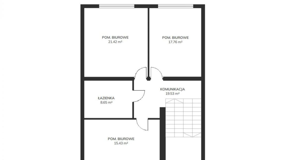
Pierwsze Piętro:
* Trzy pokoje,
* łazienka z wanną,
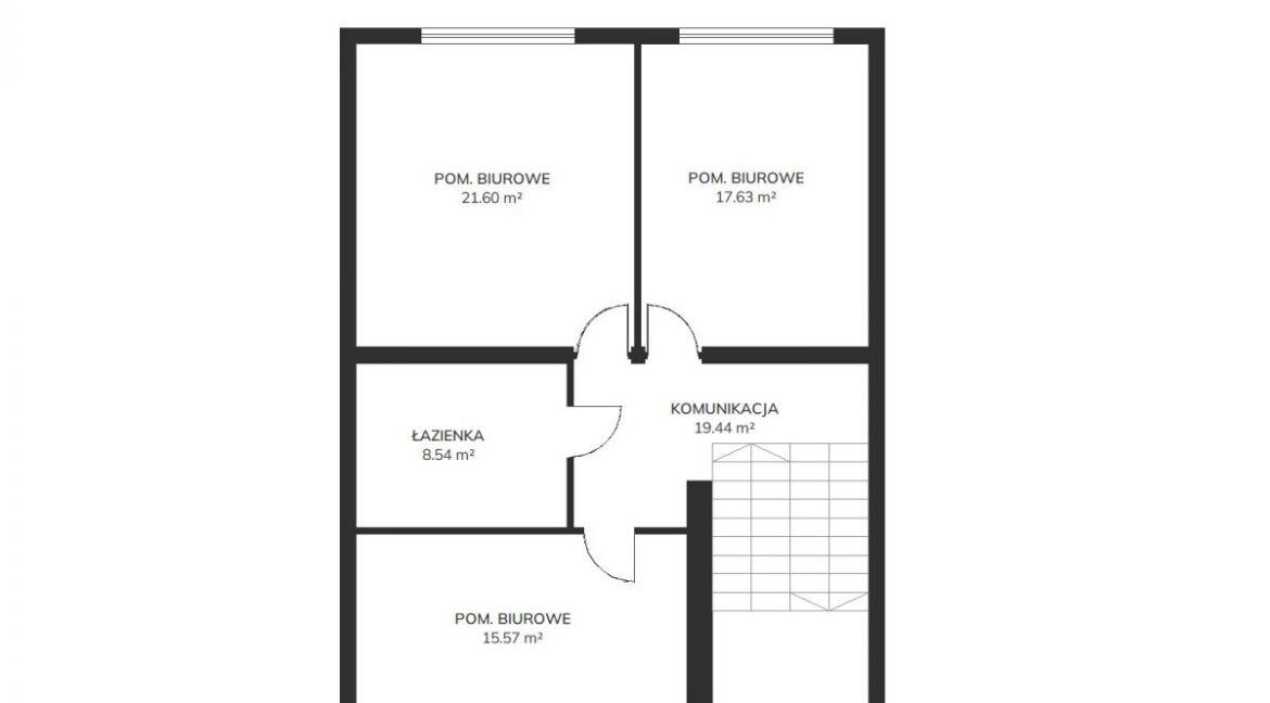
Drugie piętro:
* Trzy pokoje,
* łazienka. z wanną
STANDARD:
Nieruchomość z dużym potencjałem adaptacyjnym. Nowe okna, wysokie pomieszczenia. W tym momencie na podłodze wykładziny – pod nimi drewniany parkiet w każdym pomieszczeniu.
LOKALIZACJA:
Nieruchomość położona przy ul. Dominikańskiej, w zielonej części Mokotowa, w rejonie Służewa – z bardzo wygodnym dostępem do kluczowych arterii miasta.
Zaledwie kilka minut dzieli dom od ul. Puławskiej, al. Wilanowskiej i Doliny Służewieckiej, co zapewnia doskonałą komunikację z centrum Warszawy, lotniskiem Chopina oraz trasami wylotowymi z miasta.
W okolicy znajdują się liczne sklepy, punkty usługowe, szkoły, przedszkola, restauracje i tereny spacerowe. W odległości kilkunastu minut pieszo znajdują się m.in. stacja metra Służew, Galeria Mokotów, a także park Dolina Służewiecka.
INFORMACJA DODATKOWE:
* Ostatni remont we wrześniu 2020r.
* Wszystkie pokoje są okablowane i klimatyzowane.
* Wydzielony pokój na serwerownie.
* Cały budynek ma dostęp do światłowodu.
* Dostęp do każdego pomieszczenia z korytarza.
* Drzwi i okna z drewna mahoniowego.
* Dom nie wymaga remontów technicznych.
Serdecznie zapraszam na prezentację!
- Powierzchnia użytkowa: 390.00
- Powierzchnia działki: 273.00
- Liczba pięter: 4











