Na sprzedaż 179.000zł - Działka
DOMANIÓW – osada DUŻY LAS – 700m od ZALEWU DOMANI0WSKIEGO.
Gmina Przytyk.
504h. zbiornik retencyjno/rekreacyjny powstał w 2001r. na rzece Radomce.
Żaglówki, kajaki, motorówki, łowiska ryb i grzybowe lasy.
Działka w wyjątkowym nie powtarzalnym miejscu otoczone z trzech stron lasem sosnowym.
7 km od Przytyka (stacja benzynowa 24h, apteka, sklepy, ośrodek zdrowia, zabytkowy kościół).
100 km od Warszawy autostradą. 60 minut samochodem z Ursynowa.
17 km od Radomia.
Tereny rekreacyjno – leśne. Klimat wiosek Ziemi Radomskiej.
W okolicy odrestaurowane jak i zaniedbane dworki oraz stare młyny.
Zabytkowe kościoły we Wrzosie, Przytyku, Potworowie i innych wioskach.
Działka 3001m/2 nr ewidencyjny 88/4 w kompleksie 4-działek.
Nowe ogrodzenie i nowa bardzo solidna brama przesuwna.
Obok całoroczne gospodarstwo/leśniczówka – zamieszkałe przez miłych sąsiadów.
Warunki zabudowy z kwietnia 2025 na
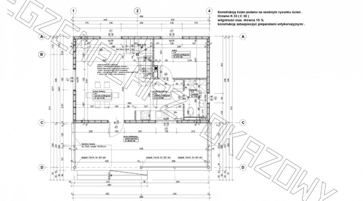
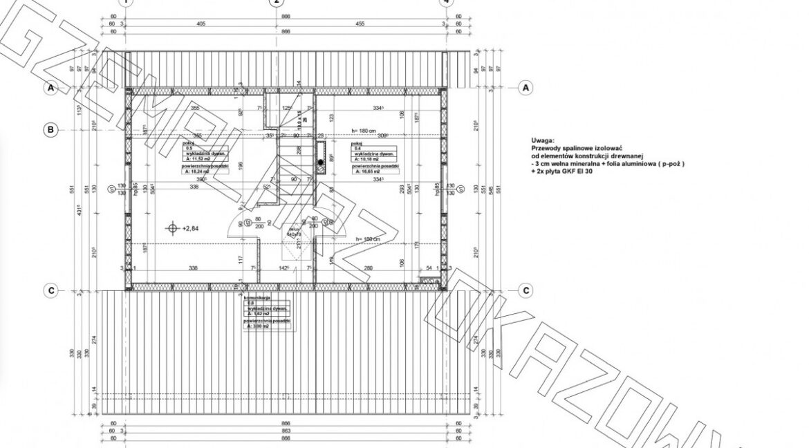
W trakcie realizacji pozwolenie na budowę domu rekreacyjnego/całorocznego z bali, pow. zabudowy 58m.
Dwie kondygnacje o całkowitej powierzchni około 80m + 20m tarasu.
PARTER: Salon z kominkiem, sypialnia, kuchnia, łazienka.
PIĘTRO: Dwie sypialnie i mała łazienka.
Projekt na drewniany dom na podmurówce z zadaszonym tarasem 20m.
Najbliższy sklep 2km w Domaniewie a dwa razy w tygodniu podjeżdża przewoźny mały sklep ogólnospożywczy – bezpośredni pod działkę.
Przy Zalewie Domaniowskim plaża, smażalnie ryb, małe bary oraz wypożyczalnie sprzętu wodnego.
Idealne miejsce dla żeglarzy, windsurfingu i kitesurfingu.
Dwa razy w tygodniu podjeżdża przewoźny mały sklep ogólnospożywczy – bezpośredni pod działkę.
Polecam bardzo ciekawa oferta POLECAM !













