Na sprzedaż 849.000zł - Dom
Oeruje Państwu bezczynszowy dom parterowy w stanie deweloperskim o powierzchni użytkowej 122,08 m2 + poddasze około 60 m2. Nieruchomość położona jest w miejscowości Działy Czarnowskie 8 km od Radzymina, 40 km od Pałacu Kultury a do o Zalewu Zegrzyńskiego – tylko 8km! . Działka na której posadowiony jest dom ma powierzchnie około 500 m2,największym atutem działki jest LAS, widok na drzewa z wielu okien z domu nadaje niepowtarzalny klimat. Jeżeli chcemy mieszkać w domu gdzie śpiew ptaków, szum lasu jest codziennością to jest idealna oferta dla Ciebie.
Dojazd do domu jest drogą asfaltową a w okolicy są szkoły, przedszkola, sklepy spożywcze, market oraz miejscowy autobus, który dowiezie nas bezpośrednio do Radzymina.
Dostępne mamy również domy gdzie działka wchodzi częścią do lasu !
Z salonu mamy piękny widok na LAS!
Pełna własność bez obciążeń.
Media światłowód, gaz, prąd, woda, szambo.
Gwarancja deweloperska.
Wizualizacje oraz układy funkcjonalne wykonane zostały przez projektanta zgodnie z projektem domu. Jest możliwość wykończenia domu pod Klucz zgodnie z Wizualizacjami. Nasz projektant wnętrz również może pomóc, aby stworzyć zupełnie inny projekt.
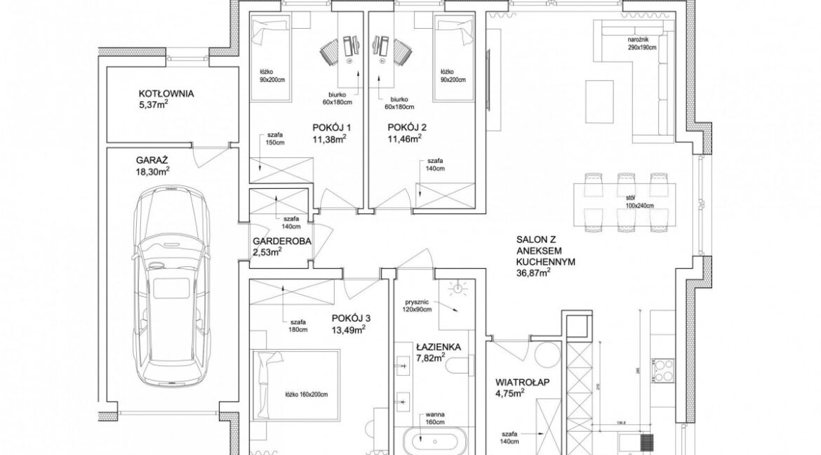
Dom składa się z :
– salon z aneksem kuchennym 36,87 m2,
– pokój 11, 46 m2,
– pokój 11,38 m2,
– sypialnia 13,49 m2,
– łazienka 7,82 m2,
– wiatrołap 4, 75 m2,
– garderoba 2,53 m2,
– kotłownia 5,37 m2,
– garaż 18,30 m2.
Okolica :
-1500m od Przedszkola,
-600m od Szkoły Podstawowej,
-3500m – Zespół Szkół,
– 1000m – sklep spożywczy,
– 1500m – stacja benzynowa,
– 3300m – kościół Katolicki,
– 7000m – Summer Playgroun.
Serdecznie zapraszamy na prezentacje nieruchomości.
- Powierzchnia użytkowa: 122.08
- Powierzchnia działki: 500.00
- Liczba pięter: 1






