Na sprzedaż 1.150.000zł - Dom
Nieruchomość w Jeziórce to doskonała propozycja dla osób poszukujących komfortowego i przestronnego miejsca do życia. Oferuje wiele atutów, które sprawiają, że jest to idealne miejsce dla rodzin oraz osób ceniących sobie spokój i bliskość natury.
– Duża działka, co daje możliwość zagospodarowania przestrzeni według własnych potrzeb.
– Cicha, zielona okolica sprzyjająca relaksowi i wypoczynkowi.
– Zadaszony taras, idealny do spędzania czasu na świeżym powietrzu.
– Kominek, który wprowadza przytulny klimat w chłodniejsze dni.
– Ogrzewanie podłogowe, zapewniające komfort cieplny w całym domu.
– Własna oczyszczalnia ścieków, co zwiększa niezależność i komfort użytkowania.
– Woda z własnej studni, zaopatrzonej w filtry, co gwarantuje czystość i jakość wody.
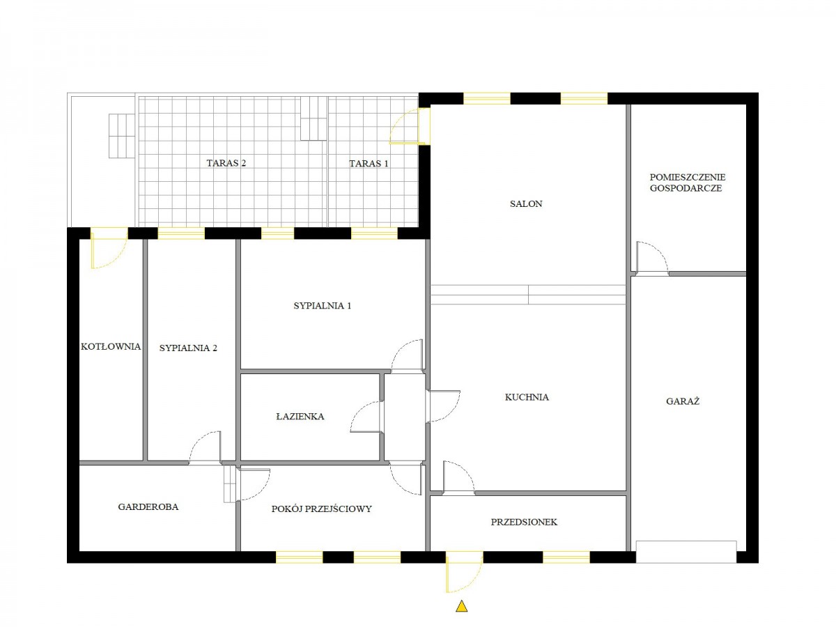
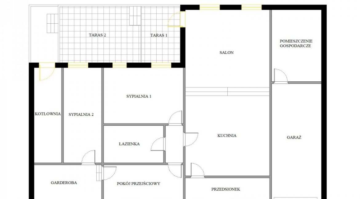
Wnętrze nieruchomości o powierzchni użytkowej 180 m², całkowitej 240m². Ciekawy układ pomieszczeń sprawia, że przestrzeń jest funkcjonalna i wygodna. Wysokość pomieszczeń wynosząca 260 cm dodaje lekkości i sprawia, że wnętrze wydaje się jeszcze bardziej przestronne. Po remoncie, nieruchomość prezentuje się nowocześnie i estetycznie, co pozwala na natychmiastowe wprowadzenie się. W galerii znajdują się zdjęcia z zaproponowaną aranżacją.
Sąsiedztwo to kolejny atut tej lokalizacji. Jeziórka to miejsce, które łączy w sobie urok natury z dostępem do niezbędnych udogodnień. W okolicy znajdują się tereny zielone, które zachęcają do aktywności na świeżym powietrzu. To idealne miejsce dla osób, które cenią sobie spokój, ale jednocześnie nie chcą rezygnować z dostępu do udogodnień.
Daleko czy blisko? Jeziórka to lokalizacja, która zapewnia komfortowy dostęp do pobliskich miast i miejscowości. Dzięki dogodnym połączeniom komunikacyjnym, można szybko dotrzeć do większych aglomeracji, co czyni to miejsce atrakcyjnym zarówno dla osób pracujących w mieście, jak i tych, które preferują życie w spokojniejszej okolicy.
Grójec 10 min.
Warszawa 40 min.
Stan prawny nieruchomości to własność co ułatwia proces zakupu i zapewnia przejrzystość transakcji.
Musisz jeszcze wiedzieć, że nieruchomość jest wyposażona w nowoczesne rozwiązania, takie jak pompa ciepła, co wpływa na efektywność energetyczną budynku. To rozwiązanie przyczynia się do obniżenia kosztów eksploatacji oraz zwiększa komfort użytkowania.
Istnieje możliwość kupienia na sąsiedniej działce budynku łatwego do adaptacji pod działalność gospodarczą – serwis, warsztat samochodowy, stolarnię lub bar czy restaurację.
Metraż dodatkowej działki to 400m.
Powierzchnia budynku – 200m.
W budynku znajdują się 4 pomieszczenia w tym jedno o powierzchni ok 80m.
Wysokość pomieszczeń 3,5-4m.
Cena 550 000 PLN
Przy zakupie obu nieruchomości cena wynosi 1 500 000 PLN.
W najbliższym sąsiedztwie znajduje się Młyn Osieczek, w którym mieści się restauracja. Młyn stoi nad zbiornikiem wodnym przy, którym z kolei zlokalizowane jest łowisko wędkarskie oraz teren rekreacyjny.
Klauzula:
Powyższa oferta ma charakter informacyjny i nie stanowi oferty handlowej w rozumieniu art. 66 §1 Kodeksu Cywilnego.
—
English version
Welcome to this charming property located in the serene area of Jeziórka. This beautifully renovated home offers a unique layout and a spacious environment, perfect for families or those seeking tranquility. With a generous area of 180 m², this residence combines comfort and modern living.
– 4 well-designed rooms for versatile use.
– Large plot providing ample outdoor space.
– Equipped kitchen ready for culinary adventures.
– Cozy fireplace for warm, inviting evenings.
– Covered terrace ideal for relaxation and entertaining.
– Underfloor heating for year-round comfort.
– Private sewage treatment plant and water from a filtered well.
This property features a very interesting layout that maximizes space and functionality. The four rooms are thoughtfully designed, providing flexibility for various needs, whether as bedrooms, a home office, or a guest room. The kitchen is equipped, making it easy to prepare meals and entertain guests. The cozy fireplace adds a touch of warmth and charm to the living area, creating a perfect gathering spot. The covered terrace extends the living space outdoors, allowing for enjoyable moments in the fresh air. With a ceiling height of 260 cm, the rooms feel open and airy, enhancing the overall ambiance of the home.
Jeziórka is known for its peaceful and green surroundings. This area offers a tranquil lifestyle, away from the hustle and bustle of city life. Residents can enjoy nature and the beauty of the outdoors, making it an ideal location for those who appreciate a quiet environment.
This property is situated in a quiet, green area, providing a perfect escape from the busy urban environment. It offers a balance of privacy and accessibility, making it a desirable location for families and individuals alike.
Legal status:
The legal status of the property is ownership with one owner, ensuring a straightforward purchasing process.
The property features a private sewage treatment plant and water sourced from a well equipped with filters, ensuring sustainability and independence from municipal services.
Legal clause:
This listing is informational and does not constitute an offer within the meaning of Art. 66 §1 of the Polish Civil Code.
- Powierzchnia użytkowa: 180.00
- Powierzchnia działki: 2600.00














