Na sprzedaż 850.000zł - Dom
0% PCC !!!
OSIEDLE KRÓLEWSKIE – ALEKSANDRÓW(pow. legionowski)
Proponowany dom na sprzedaż w zabudowie szeregowej (stan deweloperski), na nowym, zamkniętym osiedlu.
Powierzchnia całkowita 205,56 m² (powierzchnia użytkowa 133,92 m² + poddasze do adaptacji 71,6 m²), usytuowany na działce 353 m².
Nieruchomość znajduje się w miejscowości Aleksandrów, co zapewnia ciszę i spokój, bliskość natury, a jednocześnie szybki dojazd do Warszawy.
Atuty nieruchomości:
✅ Nowy dom – stan deweloperski
✅ Funkcjonalny układ pomieszczeń – przestronny salon z aneksem kuchennym, kilka sypialni, łazienki oraz poddasze do własnej aranżacji.
✅ Prywatny garaż.
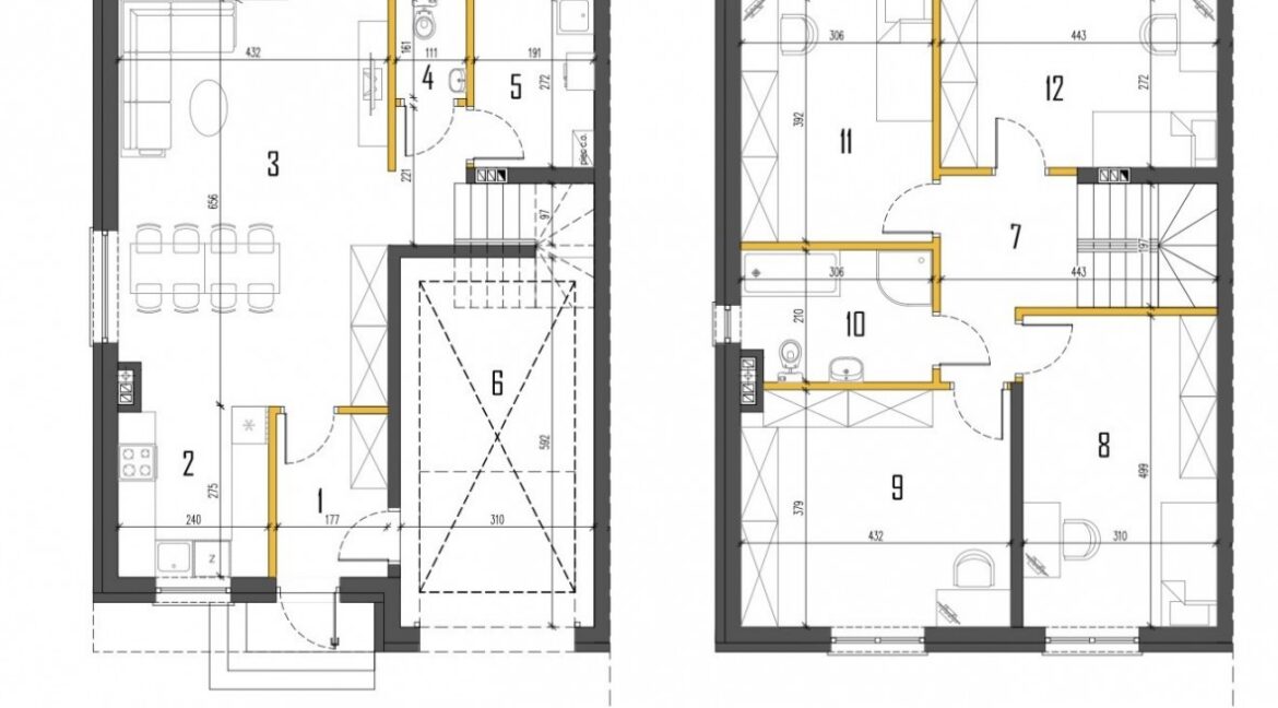
ROZKŁAD POMIESZCZEŃ:
PARTER:
– Przestronny, jasny salon z otwartą kuchnią oraz dużymi oknami wychodzącymi na ogród
– Pomieszczenie gospodarcze
– Przedsionek
– Łazienka
– Garaż
– Ogród
I PIĘTRO:
– Hol
– Sypialnia I
– Sypialnia II
– Sypialnia III
– Łazienka
– Garderoba
PODDASZE:
– 71,60 M2 do własnej aranżacji
Atuty lokalizacji:
✅ Bliskość Warszawy – Aleksandrów znajduje się około 25 km od centrum Warszawy, co umożliwia szybki dojazd zarówno samochodem, jak i komunikacją publiczną.
W pobliżu kursują autobusy ZTM oraz pociągi ze stacji w Nieporęcie i Legionowie. Obok znajdują się główne trasy, m.in. droga wojewódzka 633 oraz dogodny dojazd do S8 i S61.
✅ Bliskość Jeziora Zegrzyńskiego – zaledwie kilka minut drogi dzieli mieszkańców od Jeziora Zegrzyńskiego, popularnego miejsca rekreacji i wypoczynku.
✅ Otoczenie lasów i terenów zielonych.
✅ Spokojne osiedla i rozwijająca się infrastruktura – Aleksandrów to kameralna, bezpieczna miejscowość z nowoczesnym budownictwem i rozwijającą się infrastrukturą. W pobliżu znajdują się sklepy, szkoły, przedszkola oraz punkty usługowe, a większe centra handlowe dostępne są w pobliskim Legionowie i Warszawie.
Cena: od 850 000 PLN
– segment skrajny o powierzchni działki 353 m2 (proponowany dom w ogłoszeniu) – 930 000 PLN
– segment środkowy o powierzchni działki 109 m2 – 850 000 PLN
– segment skrajny o powierzchni działki 320 m2 – 930 000 PLN
Termin oddania: III/IV kwartał 2026
- Powierzchnia użytkowa: 134.00
- Powierzchnia działki: 353.00
- Liczba pięter: 2






