Na sprzedaż 799.000zł - Dom
Marzysz o nowoczesnym, energooszczędnym domu w spokojnej okolicy, z dala od miejskiego zgiełku, ale z wygodnym dojazdem?
Ten dom w Nowym Wilkowie to idealne połączenie komfortu, funkcjonalności i wysokiego standardu wykonania!
Najważniejsze atuty:
projekt Dom w murajach nowoczesna bryła, przemyślany układ pomieszczeń
instalacja do pompy ciepła
ogrzewanie podłogowe w całym budynku to komfort i niskie koszty utrzymania
duża działka: 1265 m² z bezpośrednim zjazdem z asfaltowej drogi gminnej
pełne uzbrojenie: prąd, woda i kanalizacja gminna, przygotowanie do własnego ujęcia wody, światłowód w drodze
gotowe instalacje: elektryczna, wod-kan, alarmowa, monitoring, klimatyzacja, automatyka bramy
instalacja odgromowa to bezpieczeństwo i trwałość
estetyczne wykonanie instalacji przed tynkami i elewacją bez widocznych przewodów i bez utraty gwarancji na elewację
Rozkład pomieszczeń
Parter
Powierzchnia 53,05 m²
Wiatrołap 3,09 m²
Spiżarnia 2,53 m²
Kuchnia 6,35 m²
Salon 16,24 m²
Hol 3,09 m²
Toaleta 1,11 m² (alternatywnie 1,36 m² w zapisie z powierzchnią podłóg)
Garaż 18,46 m² (lub 20,39 m² w zapisie podłogowym)
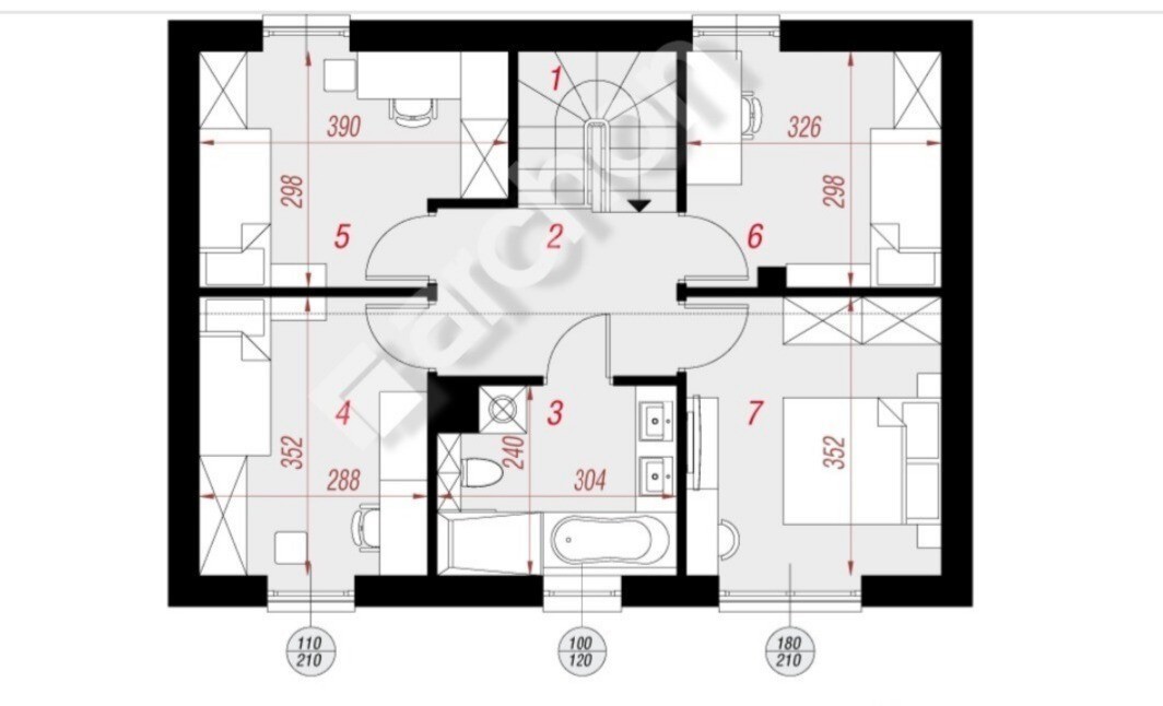
Piętro
Powierzchnia 57,61 m²
Schody 4,05 m²
Korytarz 6,21 m²
Łazienka 6,76 m²
Pokój 1 9,88 m²
Pokój 2 10,21 m²
Pokój 3 9,29 m²
Pokój 4 11,21 m²
+Poddasze użytkowe
Powierzchnia dodatkowa
Schowek w garażu z ujęciem wody idealny do przechowywania narzędzi, sprzętu ogrodowego lub organizacji przestrzeni gospodarczej.
Otoczenie i widok
Widok z okien na łąkę i las spokojna, zielona okolica zapewniająca prywatność i kontakt z naturą.
Lokalizacja
Nowy Wilków, gmina Leoncin, powiat nowodworski- spokojna, zielona okolica
Szkoła podstawowa 3 minuty samochodem
Sklepy i usługi w miejscowości i w Leoncinie, ok. 3 minuty samochodem
Ośrodek zdrowia w Leoncinie
Warszawa ok. 37 km / 40 minut samochodem
Lotnisko Warszawa-Modlin ok. 15 minut samochodem
Nowy Dwór Mazowiecki ok. 15 minut samochodem, pełna infrastruktura
Otoczenie tereny zielone, lasy, ścieżki rowerowe
Komunikacja
Dojazd komunikacją publiczną: ok. 1 minuty znajduje się przystanek autobusowy łączący z Nowym Dworem Mazowieckim i Warszawą( Metro Młociny, Metro Słodowiec, Dw. Gdański)
Stacja kolejowa w Nowym Dworze Mazowieckim ok. 15 minut samochodem, szybki dojazd pociągiem do Warszawy.
Łatwy dojazd samochodem do stolicy ok. 40 minut do granic Warszawy.
Finansowanie i kontakt
Nieruchomość można zakupić z kredytem hipotecznym pomagamy w przeprowadzeniu całego procesu kredytowego, od wstępnej kalkulacji po finalizację umowy.
Możliwość skorzystania dodatkowego obniżenia oprocentowania kredyty w programie bankowym „EKO”.
Zachęcamy do umówienia się na prezentację domu zobaczysz na własne oczy jego przestronność, funkcjonalność i wysokiej jakości instalacje.
Zapraszamy do składania ofert dom jest gotowy do dalszego wykończenia według Twojego gustu i potrzeb.
- Powierzchnia użytkowa: 108.48
- Powierzchnia działki: 1265.00
- Liczba pięter: 2














