Na sprzedaż 790.000zł - Mieszkanie
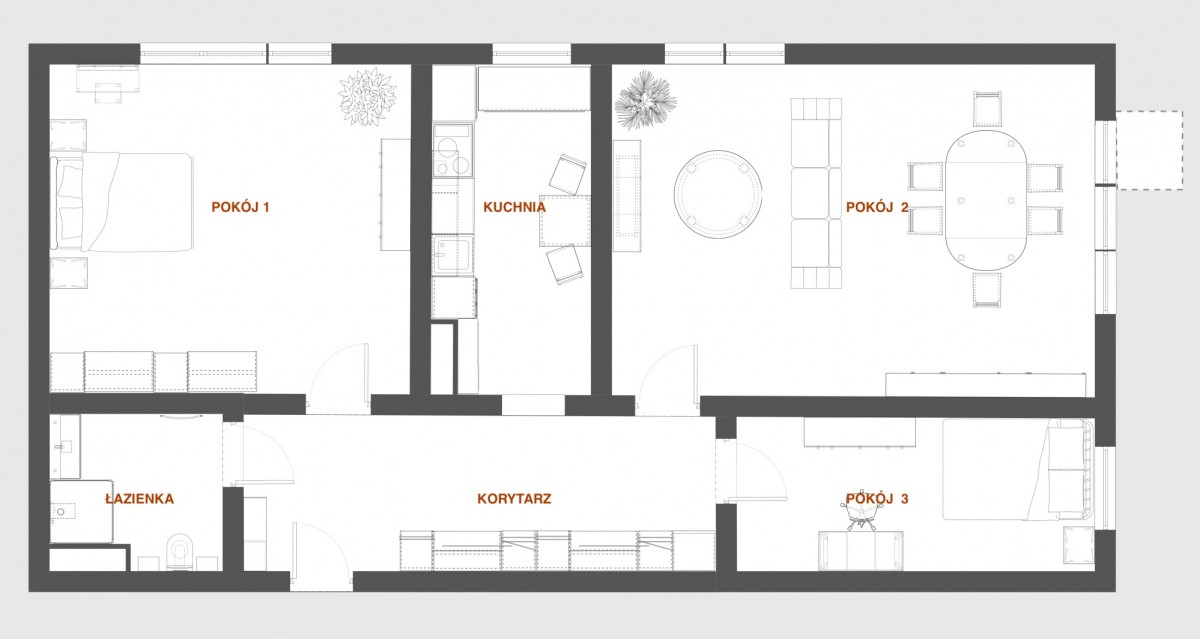
Na sprzedaż mieszkanie o powierzchni 56,10 m² przy ul. Baleya 8. To propozycja dla tych, którzy szukają komfortowego lokum w doskonałej lokalizacji lub stabilnej inwestycji z możliwością wynajmu w całości bądź na pokoje.
Przestronne i funkcjonalne
– Trzy niezależne pokoje
– Kuchnia z oknem – możliwość otwarcia jej na salon, tworząc jasną, nowoczesną strefę dzienną
– Łazienka z prysznicem
– Piwnica (ok. 5 m²) w cenie
Stan mieszkania – do odświeżenia lub remontu, według własnej wizji i potrzeb
Dodatkowe informacje
– Spółdzielcza własność z księgą wieczystą
– Szybki internet dostępny od ręki
– Stabilny najem – mieszkanie było wynajmowane przez kilkanaście lat bez przestojów
– 4 piętro w budynku bez windy
– południowo-zachodnia ekspozycja
Świetna lokalizacja
– Blisko Warszawskiego Uniwersytetu Medycznego
– Dłuższy spacer zaprowadzi Cię do Pola Mokotowskiego, a krótszy – do okolicznych parków
– W pobliżu pełna infrastruktura: sklepy, kawiarnie, restauracje i komunikacja miejska
Cena: 790 000 zł
To mieszkanie daje duże możliwości aranżacyjne i świetnie wpisuje się w rytm życia w sercu Ochoty – funkcjonalne, dobrze skomunikowane i gotowe na nowego właściciela!
*Uwaga: mieszkanie jest częściowo umeblowane. Zdjęcia bez mebli zostały przygotowane z pomocą sztucznej inteligencji.*
- Piętro: 4
- Powierzchnia użytkowa: 56.10
- Liczba pięter: 4











