Na sprzedaż 14.000.000zł - Działka
Działka budowlana w dzielnicy Warszawa Ursus, z możliwością budowy budynku wielorodzinnego idealna na inwestycje.
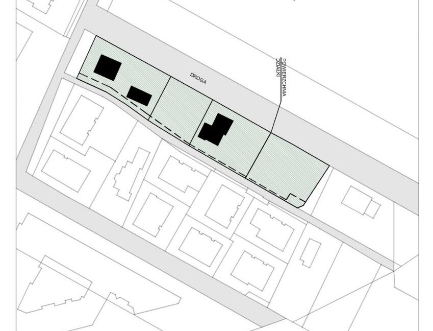
Działka w pierwszej linii zabudowy o regularnym kształcie ok ( 27 m x 141 m) razem 3 703 m2 przy drodze asfaltowej.
Aktualnie zabudowana budynkiem mieszkalnym (może zostać wyburzony), zlokalizowana w cichej i spokojnej okolicy (nowoczesne osiedla).
Działka uzbrojona w media:
– prąd,
– woda,
– kanalizacja,
– gaz (w ulicy)
Działka objęta MPZP.
Działka z wstępnie przygotowanym planem na zabudowę szeregową dwu lokalową.
Plan pozwala na wybudowanie bloku bądź willi miejskiej.
Maksymalna wysokość 11 metrów.
Trzy Kondygnacje.
Intensywność zabudowy 1,2
Powierzchnia Biologiczna 40 procent.
Powierzchnia zabudowy 40 procent.
W najbliższym otoczeniu działki znajdują się liczne punkty usługowe, apteka, przychodnia, biblioteka, sklepy, szkoły, przedszkola czy żłobki. 5 minuty pieszo znajduje się supermarket.
Szybki dojazd do stacji kolei podmiejskiej zapewnia autobus.
W odległości 15 minut pieszo znajdują się stacje kolei Ursus oraz Opacz.
Komunikacja miejska:
Kolej: Ursus, Opacz.
Autobus: 177, 178, 207, 517, 401, 187, 191, N35, N01.
Zapraszam do kontaktu.






