Na sprzedaż 890.000zł - Mieszkanie
Wykończone, pachnące nowością mieszkanie z ogródkiem – Bulwary Praskie, Jagiellońska 81A
Cesja umowy deweloperskiej – brak podatku PCC po stronie kupującego.
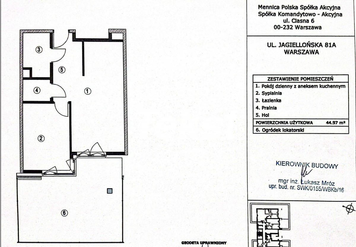
Na sprzedaż oferuję nowe, w pełni wykończone i umeblowane mieszkanie o powierzchni 45 m², zlokalizowane w prestiżowej inwestycji Bulwary Praskie przy ul. Jagiellońskiej 81A.
To mieszkanie, w którym nikt jeszcze nie mieszkał – pachnie nowością, wykonane zostało w wysokim standardzie i jest gotowe do natychmiastowego wprowadzenia się.
Najważniejsze atuty mieszkania:
1) 30-metrowy, prywatny ogródek – perfekcyjna przestrzeń do odpoczynku, spotkań z bliskimi, porannej kawy czy pracy na świeżym powietrzu.
2) Wysoki standard wykończenia – starannie dobrane materiały, jasne kolory wnętrz, przemyślany układ.
3) Łazienka – eleganckie, nowoczesne oświetlenie, nowa armatura i ponadczasowy styl.
4) W pełni umeblowane – wszystkie meble i wyposażenie pozostają w cenie.
5) Stan idealny – zero śladów użytkowania.
Miejsce parkingowe:
Do mieszkania przynależy miejsce postojowe w garażu podziemnym — 40 000 zł.
Szeroki wjazd, wygodny układ hali, łatwy dostęp do windy z poziomu garażu.
Stan prawny:
Mieszkanie posiada uregulowany stan prawny – można śmiało posiłkować się kredytem, nie występują żadne obciążenia ani przeszkody formalne.
Inwestycja Bulwary Praskie – nowoczesne, zielone osiedle
Bulwary Praskie to jedna z najciekawszych i najbardziej dopracowanych inwestycji na warszawskiej Pradze.
Osiedle wyróżnia się:
– nowoczesną, elegancką architekturą,
– licznymi nasadzeniami i starannie zaprojektowaną zielenią,
– szerokimi alejkami spacerowymi,
– wewnętrznym patio z placem zabaw,
– wysokim standardem części wspólnych,
– świetną kulturą mieszkańców i spokojną atmosferą.
Całość tworzy kameralne, bezpieczne i przyjazne miejsce do życia – idealne zarówno dla singli, par, jak i osób ceniących prywatność i komfort.
Topowa lokalizacja – idealne połączenie spokoju i miasta
Ulica Jagiellońska 81A to miejsce, które łączy ciszę zielonego osiedla z szybkim dostępem do pełnej infrastruktury miasta:
2 min do przystanków tramwajowych i autobusowych,
szybki dojazd do Centrum (ok. 12-15 minut),
blisko metro,
w sąsiedztwie sklepy, piekarnie, restauracje i punkty usługowe,
tereny nad Wisłą — idealne na spacery i sport,
blisko Park Praski i ZOO,
świetny dostęp do tras wyjazdowych z miasta.
To lokalizacja, która rośnie na wartości, a jednocześnie daje poczucie spokoju i oddechu od miejskiego zgiełku.
Zainteresowanych zapraszam do kontaktu.
Z przyjemnością przedstawię szczegóły i pomogę w przeprowadzeniu transakcji krok po kroku.
Zapraszam do kontaktu!
- Liczba pięter: 5












