Na wynajem 2.950zł - Inny komercyjny
Jeżeli szukasz biura w sercu Warszawy, mamy dla Ciebie doskonałą propozycję!
Biuro o powierzchni 20 m², położone w dogodnej lokalizacji na warszawskiej Woli przy ulicy Kasprzaka 29, w odległości około 4,5 km od Centrum Warszawy.
Lokal idealnie nadaje się na biuro dla małych firm, gabinet psychologiczny, miejsce do spotkań z klientami. To miejsce będzie idealne dla wszystkich którzy poszukują profesjonalnego miejsca pracy w prestiżowej lokalizacji.
Lokalizacja:
Dzielnica Wola posiada wiele atutów, które przyciągają tutaj wiele osób zrówno mieszkańców jak rownież firmy.
– centralne położenie: mieszkańcy mają łatwy dostęp do biznesowych, handlowych miejsc w centrum miasta, zaledwie 15 min komunikacją od Lotniska
– rozwinięta infrastruktura, dzielnica Wola jest dobrze skomunikowana transportem publicznym,
– dynamiczny rozwój: w ostatnich latach Wola stała się jednym z najszybciej rozwijających się obszarów Warszawy. Powstają tu nowe biurowce, centra handlowe i osiedla mieszkaniowe, które przyciągają inwestorów i tworzy nowe miejsca pracy.
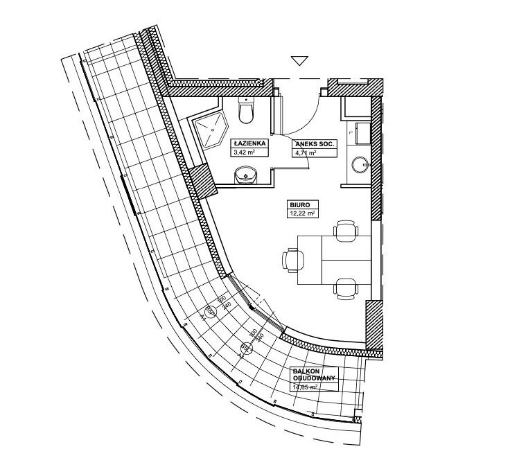
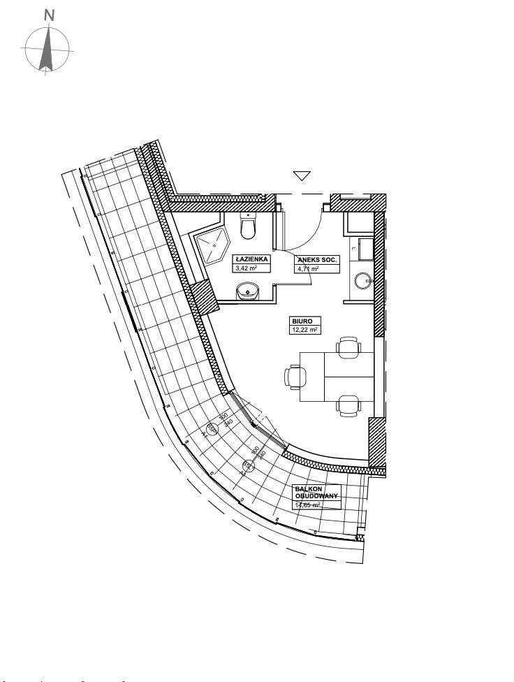
– Open space 12,22 m2
– Aneks kuchenny 4,71 m2 (lodówka)
– Łazienka 3,42 m2 (pralka)
– Balkon 14,65 m2
– W pełni wyposażone i gotowe do natychmiastowego użytku
– Jasne pomieszczenie
– Możliwość dostosowania aranżacji do potrzeb Najemcy
– Miejsce parkingowe w garażu podziemnym
Pozostałe informacje:
Całkowity koszt najmu to 2.950 zł + VAT + czynsz administracyjny 463,40 zł + zużycie mediów ponad zaliczki oraz koszty energii.
Kaucja w wysokości 3.000 zł.
Miejsce garażowe dodatkowo płatne 300 zł + VAT
Serdecznie polecam tę ofertę i zapraszam na prezentację!
Treść niniejszego ogłoszenia nie stanowi oferty handlowej w rozumieniu Kodeksu Cywilnego.
- Piętro: 6
- Powierzchnia użytkowa: 20.35
- Liczba pięter: 10









