Na sprzedaż 999.000zł - Mieszkanie
Funkcjonalne mieszkanie położone tuż przy nowej stacji metra Lazurowa, na ogrodzonym i chronionym osiedlu z 2002 roku, z szybkim wyjazdem na trasę S8.
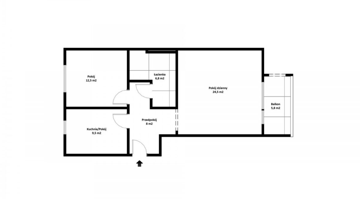
Obecny układ to 2 pokoje i duża, oddzielna kuchnia, którą można z łatwością przekształcić w pełnowymiarowy pokój dla dziecka lub gabinet.
W salonie jest przestrzeń, aby zaaranżować aneks kuchenny i stworzyć funkcjonalne 3-pokojowe mieszkanie.
Salon jest bardzo dobrze doświetlony i stanowi przyjemną, jasną przestrzeń dzienną.
Sypialnia oraz kuchnia usytuowane są od cichej strony osiedla, co zapewnia komfort i spokój.
Dużym atutem mieszkania jest również przestronna łazienka, która daje dużą swobodę aranżacyjną.
Do mieszkania przynależy piwnica o powierzchni 5 m², zapewniająca dodatkową przestrzeń do przechowywania oraz miejsce postojowego w garażu podziemnym w cenie 45 000 zł.
Informacje dodatkowe:
- czynsz administracyjny ok. 700 zł
- pełna własność z księgą wieczystą
- komunikacja miejska: autobusy, tramwaje, metro (planowane otwarcie 2026/2027)
Dla kogo?
To mieszkanie będzie dobrą propozycją dla osób, które szukają dobrze skomunikowanej lokalizacji oraz przestrzeni z potencjałem aranżacyjnym.
Bliskość metra sprawia, że mieszkanie może być również bardzo dobrą propozycją inwestycyjną pod wynajem.
Zapraszam do kontaktu i na prezentację.
- Piętro: 5
- Powierzchnia użytkowa: 61.43
- Liczba pięter: 6















