Na sprzedaż 860.000zł - Mieszkanie
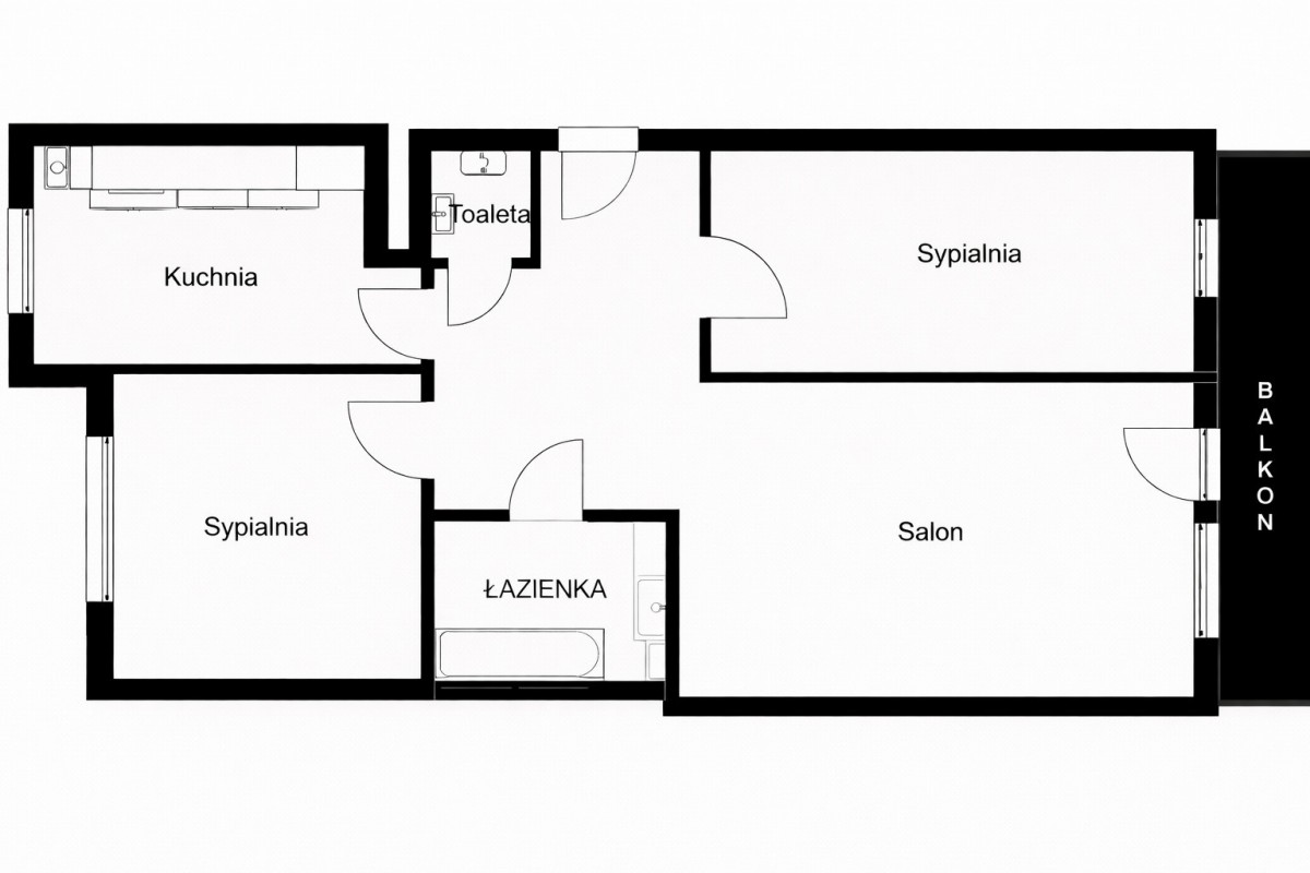
Oferuję na sprzedaż komfortowe, trzypokojowe mieszkanie o powierzchni 63,3 m², położone przy ulicy Widawskiej w dzielnicy Bemowo. Lokal znajduje się na 3. piętrze z 10 w solidnym budynku z 1984 roku.
Nieruchomość usytuowana jest na zielonym, zadbanym osiedlu o luźnej i harmonijnej zabudowie, co zapewnia wyjątkowe poczucie przestrzeni, prywatności oraz kameralny charakter miejsca. Otoczenie pełne zieleni sprzyja codziennemu wypoczynkowi, jednocześnie oferując wygodny dostęp do pełnej infrastruktury miejskiej.
Najważniejsze cechy:
– Mieszkanie po generalnym odświeżeniu: gładzie, świeżo odmalowane ściany, jasne panele podłogowe, nowoczesna i funkcjonalna kuchnia oraz drzwi antywłamaniowe Gerda.
– Lokal dwustronny, z ekspozycją okien na południe i północ, zapewniającą dobre doświetlenie i komfort użytkowania.
– duży balkon z widokiem na zieleń.
– zewnętrzne miejsce parkingowe
W skład nieruchomości wchodzi:
– oddzielna kuchnia,
– salon,
– dwa pokoje,
– łazienka,
– toaleta,
– korytarz,
Do lokalu przynależy piwnica oraz balkon.
Lokalizacja:
W najbliższym otoczeniu znajdują się liczne sklepy osiedlowe, punkty usługowe, apteki, placówki edukacyjne oraz tereny zielone (Fort Bema).
Komunikacja:
Mieszkanie jest bardzo dobrze skomunikowane. W bezpośrednim sąsiedztwie znajdują się przystanki autobusowe, zapewniające wygodny dojazd do różnych części miasta.
Najbliższy przystanek „Widawska” oddalony jest od budynku o zaledwie 350 metrów, a do stacji Metro Bemowo można dojechać w około pięć przystanków, co znacząco podnosi komfort codziennych dojazdów.
Opłaty:
czynsz w wysokości około 990 złotych.
Forma własności:
Spółdzielcze prawo własnościowe z księgą wieczystą – możliwość kredytowania.
Zapraszam na prezentację po wcześniejszym kontakcie telefonicznym lub mailowym.
- Piętro: 3
- Powierzchnia użytkowa: 63.30
- Liczba pięter: 10












