Na sprzedaż 770.000zł - Mieszkanie
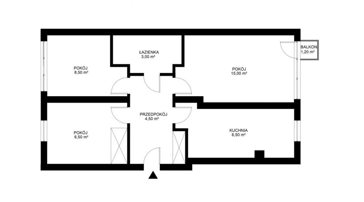
Na sprzedaż 3-pokojowe mieszkanie do remontu o powierzchni 45,2 m² na Warszawskim Solcu, idealne dla pary, rodziny lub jako inwestycja na wynajem. Lokal położony na 3. piętrze w budynku z lat 60. XX wieku (wielka płyta). Mieszkanie dwustronne – ekspozycja okien na wschód i zachód, co zapewnia naturalne doświetlenie przez cały dzień. Do lokalu przynależy balkon oraz piwnica.
Lokal w stanie do remontu.
Mieszkanie składa się z:
- trzech pokoi (w pokojach parkiet drewniany),
- oddzielnej kuchni,
- łazienki z prysznicem.
Informację dodatkowe:
W kuchni, łazience i przedpokoju na podłodze położone są płytki.
Wysokość pomieszczeń: ok. 2,5-2,6 m. Okna plastikowe. Ogrzewanie miejskie, dostępna instalacja gazowa.
Budynek:
Budynek z lat 60. w dobrym stanie technicznym. Na piętrze znajdują się jedynie trzy mieszkania. Brak windy. Budynek został docieplony, dach wymieniony, piony wodnokanalizacyjne wymienione. w latach 2026-2027 w planie wymiana elektryki w budynku.
Lokalizacja i komunikacja:
Solec to bardzo dobrze skomunikowana i rozwinięta część Warszawy. W pobliżu znajdują się przystanki autobusowe, tramwajowe oraz stacje kolejowe. Szybki dojazd do Centrum i innych dzielnic. W bezpośrednim sąsiedztwie pełna infrastruktura – sklepy, punkty usługowe, restauracje, szkoły oraz tereny zielone.
Biuro przy transakcji pobiera wynagrodzenie w formie prowizji
Forma własności: pełna własność z księgą wieczystą
Czynsz administracyjny: 798 zł
Zapraszam do kontaktu!
- Piętro: 3
- Liczba pięter: 4














