Na sprzedaż 2.050.376zł - Mieszkanie
Serdecznie zapraszam na na DZIEŃ OTWARTY w najbliższą środę po wcześniejszym umówieniu telefonicznym.
W SKRÓCIE
ul. Lazurowa 11A / Bemowo
apartament gotowy do zamieszkania / 5 pokoi/ 2 oddzielne łazienki/ 1 pralnia z pomieszczeniem gospodarczym/4 piętro z 6
przepiękny duży balkon o powierzchni ok. 9,45 m2
7 min do nowo powstającej stacji metro Chrzanów
zaprojektowane w wysokim standardzie
miejsce rodzinne parkingowe w garażu podziemnym
apartament w pełni wyposażony gotowy do zamieszkania
SZCZEGÓŁY:
Apartament zaprojektowany i wykończony w wysokim standardzie. Świetnie rozplanowana i wykorzystana przestrzeń. Meble w kuchni i łazience wykonane na zamówienie przez stolarza. Mieszkanie wykończone przy użyciu bardzo dobrej jakości materiałów (m. in.parkiet w pokojach i salonie, szafki – fornir, meble na zamówienie, stół drewniany) z dbałością o szczegóły i detale. Salon z wyjściem na przepiękny duży i przestronny balkon 9,45 m2. Budynek wybudowany w podwyższonym standardzie z 2021 roku.
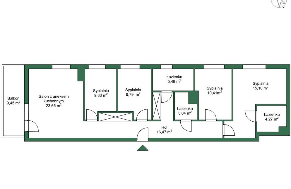
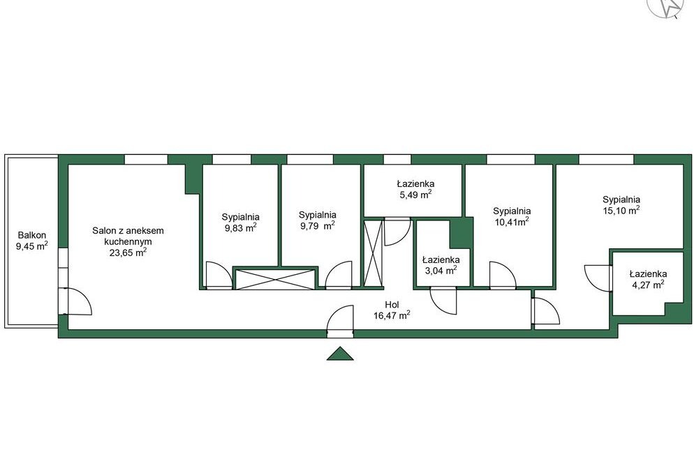
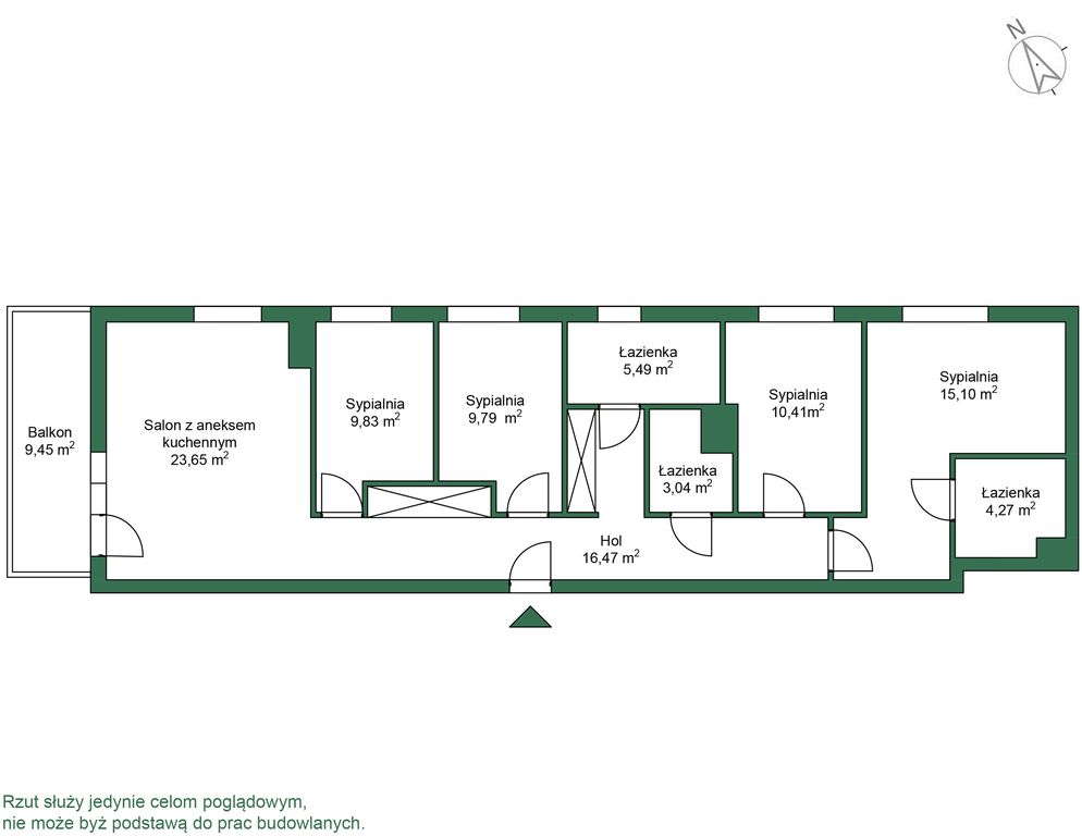
ROZKŁAD POMIESZCZEŃ
– Salon z aneksem kuchennym (23,65 m2) z wyjściem na balkon 9,45 m2
– sypialnia 1 ( 9,83 m2)
– sypialnia 2 ( 9,79 m2)
– sypialnia 3 ( 10,41 m2)
– sypialnia 4 (15,10 m2) z łazienką 4,27 m2
– Łazienka 1 z prysznicem ( 3,04 m2)
– Łazienka/ pralnia/ pomieszczenie gospodarcze (5,49m2)
– Hol (16,47 m2)
Miejsce rodzinne podwójne w garażu podziemnym dodatkowo płatne 60.000 zł
KIERUNEK OKIEN: salon- północy-zachód, pokoje- północ
STAN PRAWNY:
Własność. Mieszkanie posiada Księgę Wieczystą, co daje możliwość posiłkowania się kredytem (współpracujemy z zaufanym i skutecznym doradcą kredytowym).
OKOLICA:
Apartament położony jest w sąsiedztwie licznych sklepów, restauracji. W pobliżu także Centrum Handlowe Wola Park. Doskonała komunikacja z obwodnicą umożliwia szybkie dotarcie do Centrum oraz do każdego zakątka stolicy. Liczne autobusy, a także wkrótce stacja metra Chrzanów zapewniają doskonałą komunikacje z najważniejszymi punktami miasta.
Dla fanów natury, spacerów i sportów plenerowych idealnym miejscem jest Park Górczewska. Niezliczone ścieżki i szlaki zadowoloną najbardziej wybrednych.
ODLEGŁOŚCI:
przystanek autobusowy – 30 m
Metro Chrzanów( planowana M2) – 660 m / 7 min spacerem( w kierunku wschodnim na budowaną stację Chrzanów)
Żabka – 200 m/ 3 min spacerem
Piekarnia – 300 m
Biedronka – 300-400 m/ ok. 5 min spacerem
Kaufland – 1,3 km
Bemowskie Centrum Kultury – 700 m/9 min
Fitness Club Zdrofit – 600 m/ 8 min
Restauracje okoliczne- 600-900 m/ 8-12 min
Przedszkole 222 – 700 m
Szkoła Podstawowa – 500- 800 m/ 7 min
Wojskowa Akademia Techniczna – 3-3,2 km
Centrum Handlowe Wola Park – 3,1 km
Park Górczewska – 1,0- 1,2 km
Centrum Handlowe – Wola Park- 2,8-3,1 km
Zadzwoń, nie czekaj!!!
Niniejsze ogłoszenie opublikowane jest przez współwłaściciela WeDoEstates prowadzącego odrębne biuro nieruchomości. Wszelka współpraca w ramach niniejszego ogłoszenia odbywa się z firmą Nieruchomości Anna Pisarek, a nie ze spółką WeDoEstates Sp. z o.o.
- Piętro: 4
- Liczba pięter: 6















