Na sprzedaż 2.426.870zł - Mieszkanie
Prezentujemy Państwu nowoczesne mieszkanie w stanie deweloperskim, położone w atrakcyjnej lokalizacji blisko parku Stawy Kellera.
NIERUCHOMOŚĆ
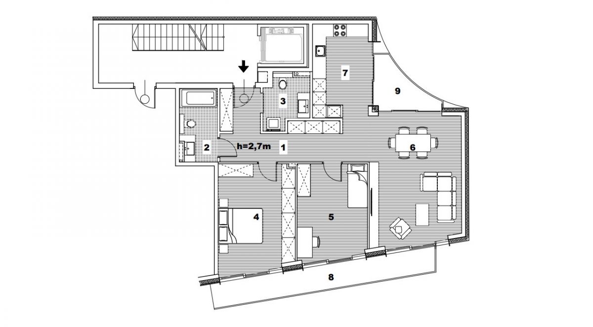
Prezentowana nieruchomość to mieszkanie o powierzchni 94 metrów kwadratowych znajdujące się na 1 piętrze budynku. Składa się ono z salonu, osobnej kuchni, dwóch sypialni, hallu oraz dwóch łazienek. Możliwość wydzielenia 4 pokoju z kuchni.
Z mieszkania wychodzą dwa balkony, jeden na stronę wschodnią, drugi na zachodnią.
Mieszkanie o funkcjonalnym układzie, zapewniający komfortowe warunki do własnej aranżacji. Duże okna zapewniają naturalne doświetlenie wnętrz, a z okien rozpościera się widok na zieleń. Idealne dla osób ceniących sobie bliskość natury.
Miejsce parkingowe w garażu podziemnym oraz komórka lokatorska dodatkowo płatne.
ATUTY NIERUCHOMOŚCI
– kameralny apartamentowiec
– lokalizacja na pograniczu Starego Żoliborza i Bielan
– bliskość terenów zielonych oraz szybki dojazd do centrum
– możliwość wydzielenia 4 pokoju
LOKALIZACJA
Apartamentowiec znajduje się na pograniczu Żoliborza i Starych Bielan. Bliskość terenów zielonych, Stawów Kellera, Dolinki Marymonckiej, Parku Kaskada oraz Lasu Bielańskiego. Dogodna lokalizacja oraz bliskość metra daje łatwy i szybki dostęp do centrum Warszawy.
- Piętro: 1
- Liczba pięter: 2















