Na wynajem 4.500zł - Inny komercyjny
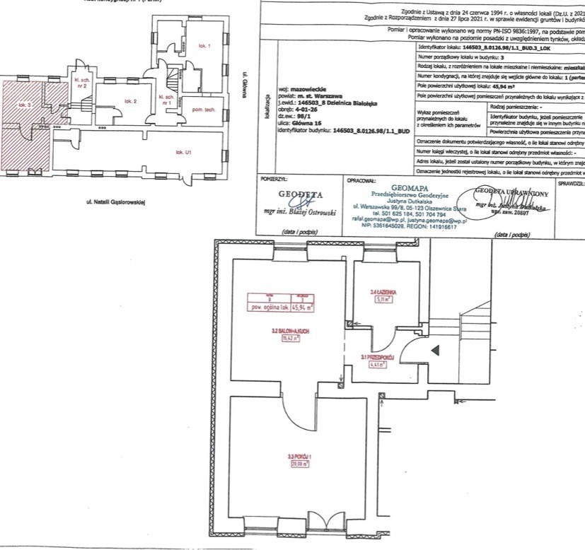
Wykończony lokal usługowy o pow. 46 m2 w reprezentacyjnej, zrewitalizowanej kamienicy w Warszawie przy ul. Głównej 16 w sąsiedztwie ul. Modlińskiej.
Miejsce parkingowe w cenie.
Możliwość wynajęcia dodatkowych miejsc parkingowych.
Idealny adres na siedzibę firmy.
Dwa miejsca parkingowe w cenie.
Przystanek autobusowy 50 m.
Możliwość podziału lokalu na lokal usługowy op pow. 20 m2 (wejście z ulicy)
i lokal mieszkalny o pow. 26 m2 (wejście z klatki schodowej od strony patio).
Główna 16 – poznaj inwestycję
2 piętrowa kamienica z 1910 roku w której pozostawiono tylko grube mury zewnętrzne.
Wysoki standard wykończenia budynku i części wspólnych.
– nowe stopy, więźba dachowa, klatki schodowe
– docieplone 15 cm grafitowym styropianem 50 cm mury
– lokal do swobodnej aranżacji przestrzeni na podłodze gres
– okna i okucia przeciwwłamaniowe
– lokale ogrzewane za pomocą kotłowni gazowej
– wykończona oddzielna toaleta.
W budynku znajduje się 13 mieszkań oraz lokal usługowy.
Wysokość lokalu 2,9 m.
Dodatkowo płatny czynsz 650 zł + prąd.
Główna 16 lokalizacja
Skrzyżowanie ulic Głównej i Natalii Gąsiorowskiej – Warszawa Białołęka Nowodwory.
Odległości:
50 m przystanek autobusowy ZTM
130 m ul. Modlińska 500 m Poczta
700 m Biedronka 1 km przedszkole
1,8 km szkoła podstawowa
1,9 km hurtownia spożywcza Selgros
2,5 ścieżka rowerowa wzdłuż Wisły, rezerwat przyrody
9 km metro Młociny
15 km Dworzec Wschodni
25 km Mazowiecki Port Lotniczy Warszawa-Modlin.






