Na wynajem 6.900zł - Mieszkanie
Wynajem 100 m² – 4 pokoje – Bemowo, ul. Pirenejska
Do wynajęcia przestronne, jasne mieszkanie o powierzchni 100 m², położone na 4. (ostatnim) piętrze budynku z 2012 roku na Bemowie – Lotnisko.
To propozycja dla osób, które potrzebują realnej przestrzeni, a nie czterech pokoi na papierze.
Podstawowe informacje:
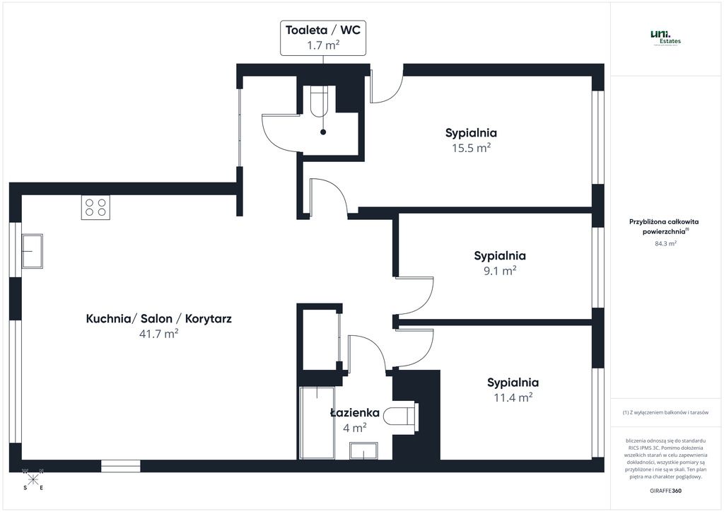
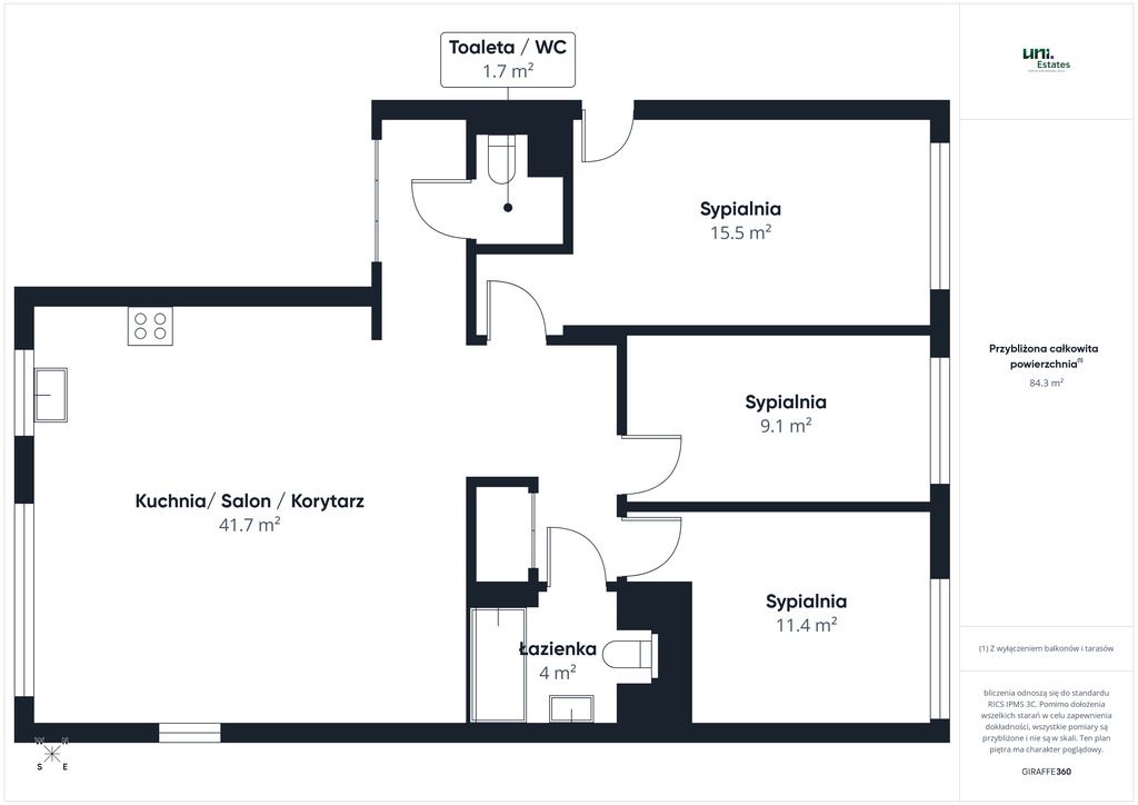
Powierzchnia: 100 m²
Liczba pokoi: 4
Piętro: 4 z 4 (ostatnie)
Typ zabudowy: blok
Rok budowy: 2012
Winda: tak
Balkon: tak
Komórka lokatorska: tak
Miejsce postojowe w garażu podziemnym: tak
Rozkład i przestrzeń:
• bardzo duży salon z przestronną częścią dzienną
• oddzielna, funkcjonalna kuchnia
• sypialnia z garderobą
• dwa dodatkowe pokoje (ok. 9 m² i 13 m²)
• łazienka z wanną
• osobna toaleta
• wygodny przedpokój bez straty metrów na komunikację
Dodatkowo duży balkon z widokiem na wewnętrzne patio – idealne miejsce na poranną kawę lub wieczorny odpoczynek.
Światło i ekspozycja Mieszkanie dwustronne:
• część dzienna – ekspozycja południowa (dużo naturalnego światła)
• część sypialniana – północna (komfortowa do odpoczynku)
Duże okna zapewniają bardzo dobre doświetlenie przez cały dzień.
Standard wykończenia Mieszkanie świeżo po remoncie, wykończone w wysokim standardzie:
• drewniane podłogi w pokojach
• gres w kuchni, łazienkach i przedpokoju
• pełne wyposażenie AGD
• pralka i suszarka
Umeblowanie do ustalenia z najemcą.
Lokalizacja Bemowo – Lotnisko, ul. Pirenejska.
Cicha, zielona okolica z dobrą komunikacją.
W pobliżu:
• szkoła
• sklepy
• park i tereny zielone
• las
Kilka minut komunikacją miejską do metra (linia M2). W okolicy liczne linie tramwajowe i autobusowe.
Warunki najmu:
- Czynsz najmu: 6900 zł / miesiąc
- Czynsz administracyjny: 1300 zł / miesiąc
- Opłaty zmienne (prąd): według zużycia
- Kaucja: 16000 zł
- Możliwość wynajęcia miejsca postojowego: 500 zł / miesiąc (opcjonalnie)
- Minimalny okres najmu: 12 miesięcy (najem okazjonalny)
- Prowizja dla biura nieruchomości
Podsumowanie atutów:
100 m² realnej przestrzeni
4 ustawne pokoje
ostatnie piętro
świeżo po remoncie
balkon
komórka lokatorska
miejsce w garażu podziemnym
spokojne, zielone otoczenie
To mieszkanie łączy przestrzeń domu z wygodą miejskiego życia.
Idealne dla rodziny, pary potrzebującej gabinetu lub osób pracujących zdalnie.
Zapraszam do kontaktu i umówienia się na prezentację.
Takie metraże na Bemowie pojawiają się rzadko.
Przedstawione ogłoszenie ma charakter wyłącznie informacyjny i nie stanowi oferty w rozumieniu art. 66 par. 1 Kodeksu cywilnego. Biuro Nieruchomości dokłada starań, aby treść ogłoszeń była rzetelna i aktualna, jednak nie ponosi odpowiedzialności za ewentualne nieścisłości, błędy lub nieaktualność ogłoszenia.100 m² for rent – 4 rooms – Bemowo, ul. Pyrenees
For rent a spacious, bright apartment with an area of 100 m², located on the 4th (top) floor of a building from 2012 in Bemowo – Lotnisko.
This is a proposition for people who need real space, not four rooms on paper.
Basic information:
Area: 100 m²
Number of rooms: 4
Floor: 4 of 4 (last)
Building type: block
Year of construction: 2012
Elevator: yes
Balcony: yes
Storage unit: yes
Parking space in the underground garage: yes
Layout and space:
• very large living room with a spacious living area
• separate, functional kitchen
• bedroom with wardrobe
• two additional rooms (approx. 9 m² and 13 m²)
• bathroom with bathtub
• separate toilet
• comfortable hall without wasting meters on communication
Additionally, there is a large balcony overlooking the interior patio – the perfect place for morning coffee or evening relaxation.
Light and exposure Two-sided apartment:
• living area – southern exposure (lots of natural light)
• bedroom area – north (comfortable for rest)
Large windows provide very good lighting throughout the day.
Finishing standard The apartment has just been renovated and finished to a high standard:
• wooden floors in the rooms
• stoneware in the kitchen, bathrooms and hall
• full household appliances
• washing machine and dryer
Furniture to be agreed with the tenant.
Location Bemowo – Airport, Pirenejska Street.
Quiet, green area with good transport connections.
Nearby:
• school
• shops
• park and green areas
• forest
A few minutes by public transport to the metro (line M2). Numerous tram and bus lines are nearby.
Rental conditions:
- Rent: PLN 6,900 / month
- Administrative rent: PLN 1,300 / month
- Variable charges (electricity): according to consumption
- Deposit: PLN 16,000
- Possibility to rent a parking space: PLN 500 / month (optional)
- Minimum rental period: 12 months (occasional rental)
- Real estate agency commission
Summary of advantages:
100 m² of real space
4 well-arranged rooms
top floor
freshly renovated
balcony
storage unit
underground garage space
peaceful, green surroundings
This apartment combines the space of a home with the comfort of city life.
Perfect for a family, a couple needing an office, or people working remotely.
Please contact me and arrange a presentation.
Such square footages are rare in Bemowo.
This announcement is for informational purposes only and does not constitute an offer within the meaning of Article 66, Section 1 of the Civil Code. The Real Estate Agency strives to ensure that the content of the announcements is accurate and up-to-date, but is not responsible for any inaccuracies, errors, or out-of-date nature of the announcement.
- Piętro: 4
- Liczba pięter: 4















