Na wynajem 4.600zł - Mieszkanie
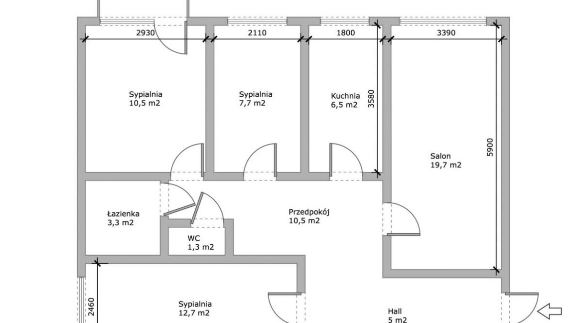
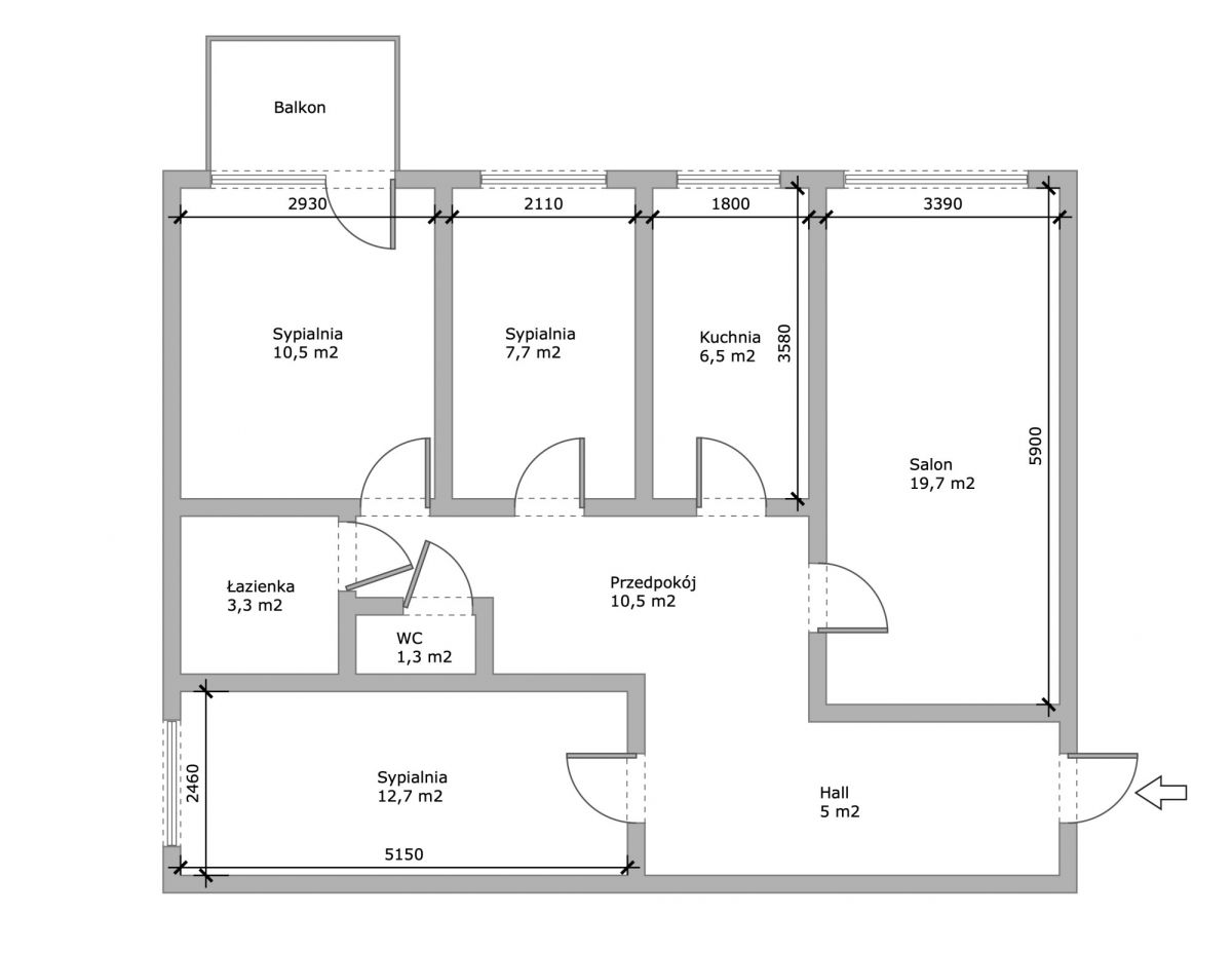
Oferuję do wynajęcia przestronne mieszkanie 4-pokojowe z osobną kuchnią o powierzchni 75 m2 przy ul. Łukowej 7 na warszawskim Mokotowie – Służew nad Dolinką.
Zaledwie 2 przystanki autobusowe od Stacji Metra Służew!
Na lokal skłądają się:
– Salon 19,70m2
– Pokój 12,70m2
– Pokój 10,50m2 – z wyjściem na balkon,
– Pokój 7,7m2
– oddzielna kuchnia z oknem 6,5m2
– łazienka 3,3m2
– osobna toaleta
– duży przedpokój, hall i balkon.
Lokal jest przestronny, dobrze nasłoneczniony, zadbany i gotowy do wprowadzenia się. Kwestia umeblowania pozostaje do ustalenia z właścicielem. W mieszkaniu pokoje i łazienki są po generalnym remoncie. Piękny widok z okna na otaczającą zieleń.
Mieszkanie idealnie nadaje się zarówno do zamieszkania jak i na biuro lub działalność gospodarczą.
Budynek po remoncie, ocieplony, mamy tu kilka wejść do klatki z różnych stron oraz otaczający parking – bez problemu można tu zaparkować o każdej porze dnia.
Lokalizacja
W okolicy sklepy spożywcze (Lidl, Biedronka), żabka, restauracje, pizzeria, lokale usługowe, placówki edukacyjne i tereny zielone- nieopodal Park Dolina Służewiecka. Dobry dojazd do SGGW, SGH, Politechniki, UW, oraz do Wilanowa.
Komunikacja
Stacja Metra Służew – 2 przystanki autobusowe (10min)
Autobusy linii:
* 189, 193, 317, 401, 402, N33, N50, N83 – przystanek Noskowskiego (4 minuty na pieszo)
* 164, 217, 251 – przystanek Łukowa (4 minuty na pieszo)
* 107, 148, 163, 166, 185, 189, 402, 503, 519, N03, N33, N50, N83 – przystanek Dolina Służewiecka (4 minuty na pieszo)
Całkowity koszt najmu: 4600 PLN + opłaty (1.300 czynsz + prąd)
Umowa najmu okazjonalnego na minimum 12 miesięcy.
Mieszkanie wolne od zaraz.
Zapraszam do kontaktu i na prezentację Nieruchomości!
- Piętro: 6
- Powierzchnia użytkowa: 75.00
- Liczba pięter: 10















