Na sprzedaż 1.341.000zł - Mieszkanie
Zakup bez PCC i prowizji dla biura nieruchomości.
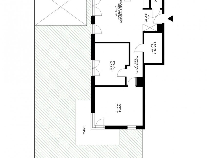
Mam przyjemność przedstawić Państwu 3-pokojowe mieszkanie usytuowane na parterze piętrze w 3 piętrowego bloku z 2025 roku- przy ul. Solipskiej 33 o łącznej powierzchni 72,51 mkw. w bliskiej okolicy dużych arterii al. Jerozolimskich oraz ul. Łopuszańskiej.
Ogród Włochy- jedna z najpiękniejszych i najbardziej intrygujących dzielnic Warszawy. Jest świetnie skomunikowana, bo do centrum szybką koleją można dojechać w ok.15 minut, a cieszy spokojem, zielenią i elegancją.
Mieszkanie, mimo swojej bliskości do centrum miasta oraz wspomnianych węzłów komunikacyjnych, pozostaje miejscem cichym.
Salon z aneksem kuchennym 27,65 mkw.
Pokój 16.32 mkw.
Pokój 12.46 mkw.
Łazienka 5,01 mkw.
WC 2,15 mkw.
Hol 3,64 mkw.
Korytarz 5,29 mkw.
Do mieszkania przynależy ogródek 149.25 mkw.
Do mieszkania przynależy miejsce postojowe w garażu podziemnym dodatkowo płatne w cenie 50 000 PLN. zakup nie obowiązkowy.
Mieszkanie w stanie deweloperskim, co pozwala na dowolną aranżację wnętrz według własnych upodobań.Opis osiedla
Inwestycja Solipska City składa się z trzech budynków połączonych ze sobą .Każdy o wysokości 4 kondygnacji nadziemnych, usytuowanych na jednokondygnacyjnym garażu w części podziemnej. Kompleks mieszkaniowy zlokalizowany jest przy ulicy Tynkarskiej w Warszawie. Korytarz i klatka schodowa dostępna jest dla osób niepełnosprawnych. Mieszkania na sprzedaż są też dostępne za pośrednictwem wind, które obsługują wszystkie kondygnacje mieszkalne i garaż. Cały teren nieruchomości jest ogrodzony i monitorowany. Zróżnicowane metraże mieszkań i ustawne rozkłady pozwalają na atrakcyjną aranżację wnętrz.
Pomieszczenie na odpadki stałe – zlokalizowano wewnątrz budynku z oddzielnym wejściem oraz osobną wentylacją
Monitoring – osiedle znajdować się będzie pod stałą kontrolą kamer.
Zieleń – całość zagospodarowania terenu jest uzupełniona o zieleń niską.
Najbliższa okolica osiedla Solipska City
260m (1 min pieszo) – Stacja kolejowa Warszawa Włochy, 400m (3min pieszo) przystanek autobusowy
750m (9 min pieszo) Szkoła Podstawowa 66 , 380mkm (4 min pieszo) Liceum , 500m (6 min pieszo) Przedszkole
370m (5 min pieszo) – Przychodnia Lekarska, 400m (5 min pieszo) Apteka
700m (8min pieszo) sklep Lewiatan, 800m (10 min pieszo) Lidl, 5,5km (10min pieszo)
850m (12min pieszo) Park ze Stawami Cietrzewia, 260m (2 min pieszo) Park Kombatantów
Dzięki bliskości dróg szybkiego ruchu dojazd jest szybki do większości dzielnic i miejsc biznesowych Warszawy, a w szczególności do Śródmieścia, Mordoru i Międzynarodowego Lotniska Chopina.
Komunikacja miejska:
Kolej: PKP Warszawa Włochy.
Autobus: 127, 129, 178, 189,191, 228, N01 oraz N85.
Mieszkanie własnościowe z księgą wieczystą.
Jeśli zainteresowało Państwa to rewelacyjne mieszkanie w fantastycznej okolicy, to zapraszam na prezentację!
Powyższa oferta ma charakter informacyjny i nie stanowi oferty handlowej w rozumieniu art. 66 §1 Kodeksu Cywilnego.
- Powierzchnia użytkowa: 72.51
- Liczba pięter: 3









