Na sprzedaż 4.250.000zł - Inny komercyjny
331M2/ LOKAL HANDLOWO-USŁUGOWY/ WITRYNY/ NAJEMCA ZWROT 7%/ UL. ZAMOYSKIEGO/ PRAGA-PÓŁNOC
BUDYNEK:
Budynek wielorodzinny z lokalami usługowymi w parterze zlokalizowany dokładnie naprzeciwko Fabryki Czekolady Wedla przy ul. Zamoyskiego 51A. Wysokie pomieszczenia.
Cały obiekt jest podłączony do sieci miejskich, w lokalu światłowód oraz pełna infrastruktura pod stanowiska do pracy. Przed budynkiem znajdują się ogólnodostępne miejsca parkingowe.
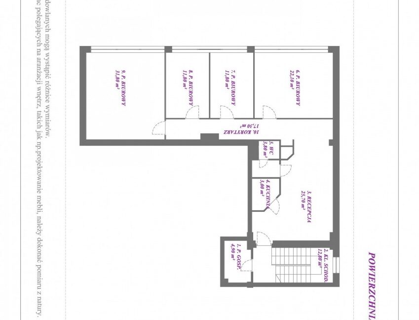
ROZKŁAD POMIESZCZEŃ:
Dwupoziomowa powierzchnia lokalu podzielona jest na parter (wysokość 335 cm) oraz pierwsze piętro (wysokość 292 cm).
Na parterze, którego metraż wynosi 199,1 m2 przystosowanie i podział na salę operacyjną, pomieszczenie socjalne, serwerownię, ścianę bankomatową oraz trezor.
Na piętrze o powierzchni 132,2 m2 zaprojektowano 4 pokoje biurowe / sale spotkań, garderobe, toalete oraz pomieszczenie socjalne.
Powierzchnia jest w pełni zaaranżowana lecz może zostać elastycznie dopasowana do specyfiki konkretnej branży oraz wymagań Właściciela/Najemcy.
STANDARD WYKOŃCZENIA:
Wysoki standard wykończenia oraz elastyczny podział pomieszczeń dla działaności biurowej.
DOADTKOWE INFORMACJE:
Lokal przez najbliższe 4 lata wynajmowany przez solidnego najemcę – kancelarię prawną.
Czynsz najmu 25.000 zł/msc netto + opłaty za czynsz i media.
LOKALIZACJA:
Budynek z witrynami znajduje się przy ruchliwej ulicy – jednej z głównych arterii Pragi-Pólnoc , okolice Fabryki Czekolady Wedla, Teatru Powszechnego oraz Parku Skaryszewskiego. Spacerowy dystans do Stadionu Narodowego. Dojazd samochodem do centrum zajmuje niespełna 10 minut. W bezpośredniej bliskości stacja metra Stadion Narodowy, liczne przystanki autobusowe i tramwajowe.
- Powierzchnia użytkowa: 331.30
- Liczba pięter: 4













