Na sprzedaż 710.000zł - Mieszkanie
Mieszkanie przy ulicy Przejezdnej 12 na warszawskiej Białołęce – gotowe do wprowadzenia, dostępne od zaraz
Inwestycja Aura Garden została zrealizowana przez renomowanego dewelopera Mill-Yon, znanego z dbałości o wysoką jakość wykończenia. Osiedle wyróżnia się starannie zaprojektowanymi częściami wspólnymi, bogatymi w zróżnicowaną roślinność, które nadają mu przyjazny i zielony charakter. Dodatkowym atutem jest spokojna i cicha okolica, gwarantująca komfort codziennego życia.
Forma własności: pełna własność z księgą wieczystą – możliwy zakup na kredyt hipoteczny.
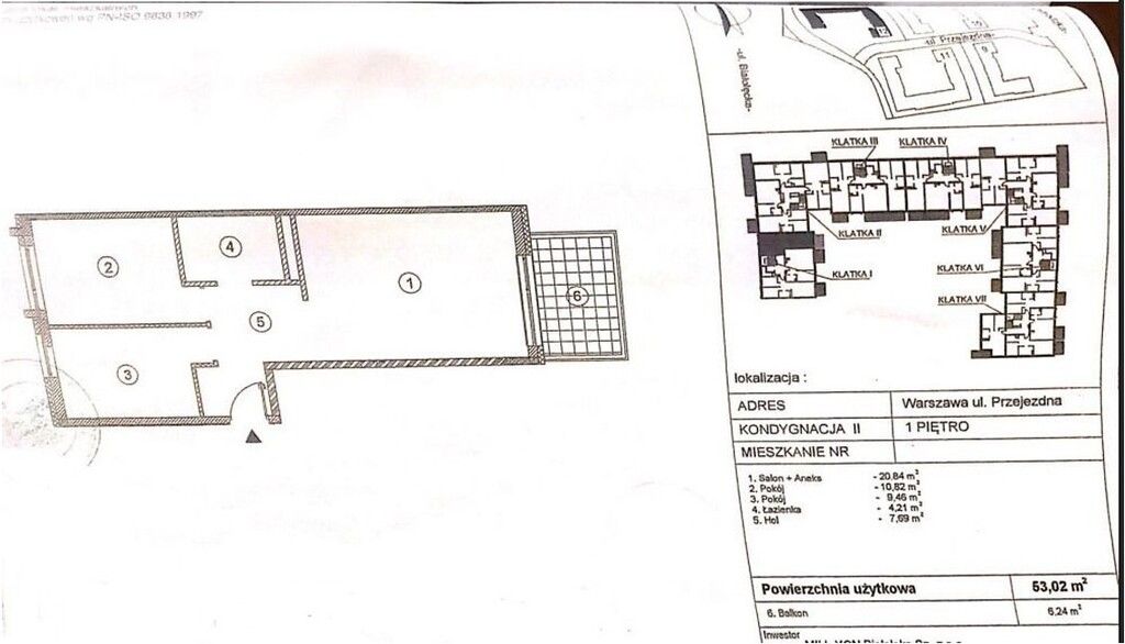
Na mieszkanie o powierzchni 53,02 m² na 1 piętrze, w budynku z windą, składają się:
- Salon z aneksem kuchennym (20,84 m²) z wyjściem na balkon (6,24 m²), ekspozycja wschodnia
- Sypialnia (10,82 m²) z ekspozycją zachodnią
- Pokój (9,46 m²) z ekspozycją zachodnią
- Łazienka z wanną (4,21 m²)
- Hol (7,69 m²)
Lokalizacja – Białołęka, ul. Przejezdna
- Spokojna, zielona okolica z pełną infrastrukturą
- Szybki dojazd do Trasy Toruńskiej
- Komunikacja miejska: przystanki autobusowe (120, 134)
- W pobliżu liczne sklepy (Carrefour, Lidl, Biedronka, Netto), a także centra handlowe: Factory Annopol, M1, Galeria Północna i CH Marywilska
- Ścieżki spacerowe i tereny rekreacyjne wzdłuż Kanału Żerańskiego
Parking
Do mieszkania przynależy miejsce postojowe w garażu podziemnym na poziomie -1 dodatkowo płatne 40 000 zł
Opłaty
Czynsz administracyjny: 850 zł – zawiera m.in. opłaty za fundusz remontowy, zaliczki na wodę, wywóz śmieci, centralne ogrzewanie, koszty eksploatacyjne oraz garaż
Mieszkanie jest gotowe do wprowadzenia – idealne zarówno dla rodziny, pary, jak i jako inwestycja pod wynajem.
Zapraszam do kontaktu w celu uzyskania dodatkowych informacji i umówienia prezentacji
- Piętro: 2
- Liczba pięter: 3













