Na sprzedaż 1.360.000zł - Mieszkanie
Trzypokojowe mieszkanie położone na Mokotowie przy ulicy Garażowej. Budynek o podwyższonym standardzie z 2017 roku – deweloper DOM DEVELOPMENT
Lokal na 5 piętrze – narożny ( wystawa okien wschód oraz południe)
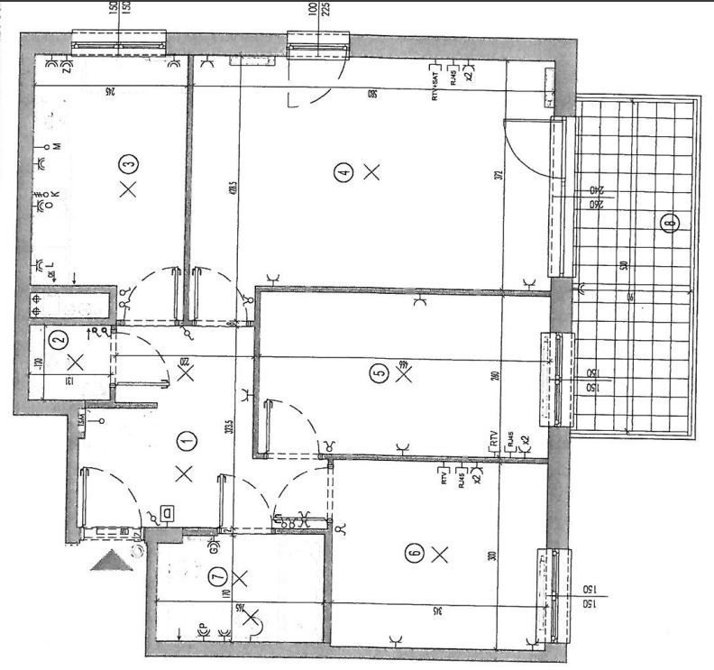
Mieszkanie jest jasne, przestronne. Wysokość pomieszczeń 275 cm
Powierzchnia lokalu to 68,58 m
– łazienka – 4,39
– toaleta – 1,50
– przedpokój – 9,24
– sypialnia – 11,90
– gabinet, II sypialnia- 10,16
– kuchnia – 9,52
– salon – 21,87
balkon-taras o powierzchni 10,07
Komórka Lokatorska na poziomie -2 w cenie !
Miejsce postojowe w garażu na poziomie -2 (dodatkowo płatne) – 40 000
- Piętro: 5
- Liczba pięter: 6













