Na sprzedaż 1.235.500zł - Mieszkanie
Na Starym Mokotowie przy ul. Puławskiej czeka na Ciebie trzypokojowe mieszkanie o powierzchni 70,6 m² i wysokości ponad 300 cm, znajdujące się na 1 piętrze w kamienicy.
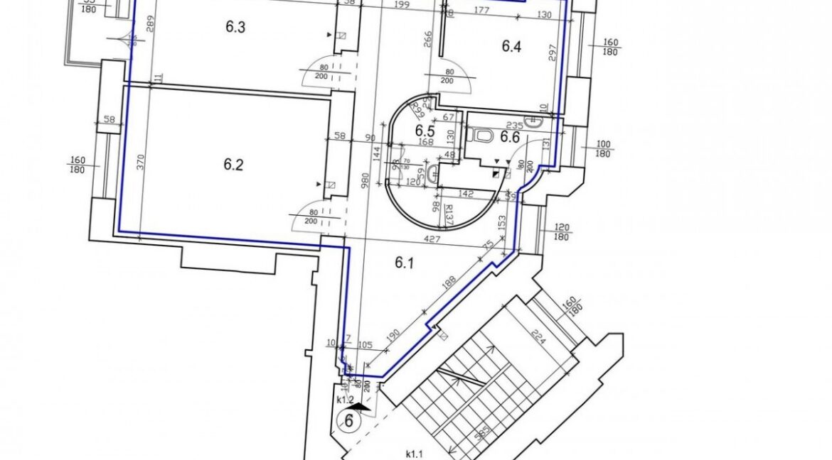
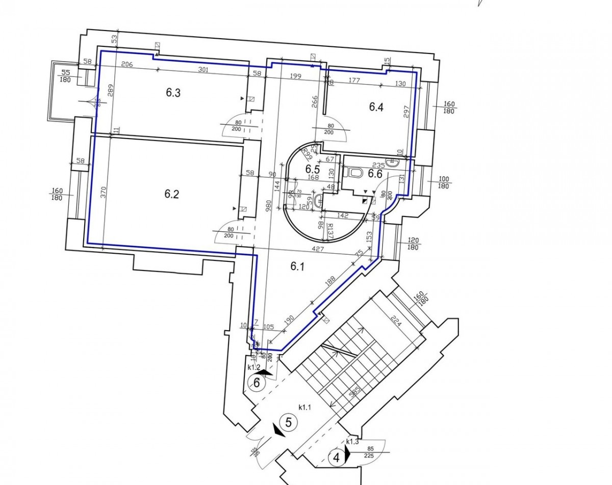
UKŁAD MIESZKANIA:
– trzy pokoje (19; 14; 10 m²),
– kuchnia (5 m²),
– łazienka (3 m²),
– przedpokój (21 m²),
– garderoba (4 m²),
– balkon.
Obecnie lokal wykorzystywany jest jako kancelaria, a garderoba pełni funkcję archiwum. Aby przywrócić funkcję mieszkalną, konieczna jest adaptacja kuchni oraz łazienki. Istnieje również możliwość przeniesienia kuchni do najmniejszego z pokoi, co daje dodatkową elastyczność aranżacyjną.
Na podłodze zachowano oryginalną cegłę w bardzo dobrym stanie. Drzwi do każdego pokoju wyposażone są w podwójne zamki, a w jednym z pomieszczeń znajduje się zabudowa z egzotycznego drewna po całej długości ściany. Nieruchomość posiada system alarmowy, klucze elektroniczne oraz centralkę.
BUDYNEK:
To 4-piętrowa kamienica z fasadami od ul. Puławskiej i Racławickiej, wybudowana w 1935 roku. Na klatce schodowej zachowane do dziś przedwojenne posadzki tzw. gorseciki. W planach jest modernizacja całej kamienicy.
NAJBLIŻSZE OTOCZENIE I LOKALIZACJA:
Na infrastrukturę nie można narzekać. Po sąsiedzku znajduje się Park Morskie Oko. Około 15 minut pieszo zajmie Ci dojście do kultowych Łazienek Królewskich.
W pobliżu znajdują się przystanki autobusowe (linie: 130, 141, 172, 222), tramwajowe (linie: 4, 10, 14, 18, 35) oraz stacja metra Racławicka (około 10 min. pieszo)
Kilkanaście minut pieszo lub kilka minut autobusem lub tramwajem zajmie dojazd na tętniący życiem Plac Unii Lubelskiej.
DODATKOWE INFORMACJE:
- ogrzewanie gazowe,
- parking na ulicy.
W OFERCIE POSIADAMY RÓWNIEŻ INNE NIERUCHOMOŚCI W TYM BUDYNKU.
- Piętro: 1
- Liczba pięter: 4











