Na sprzedaż 899.000zł - Mieszkanie
Na sprzedaż mieszkanie 3-pokojowe o powierzchni 57,4 m² na Starym Mokotowie, przy ulicy Racławickiej.
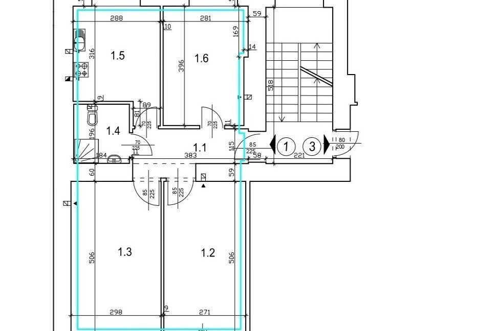
UKŁAD MIESZKANIA:
- trzy rozkładowe pokoje (ok. 15 m², 14 m² i 11 m²),
- kuchnia (ok. 10 m²),
- łazienka z toaletą (ok. 3,5 m²),
- przedpokój (ok. 4,5 m²),
- balkon (od ul. Racławickiej).
BUDYNEK:
Nieruchomość mieści się na 1 piętrze w 4-piętrowej kamienicy bez windy, z 1935 roku, od strony ul. Puławskiej i Racławickiej.
W budynku zachowały się oryginalne elementy wykończenia, takie jak zabytkowe „gorseciki” na klatce schodowej.
LOKALIZACJA:
Świetna lokalizacja – w pobliżu Park Morskie Oko, sklepy, kawiarnie i różnorodne punkty usługowe. Do Łazienek Królewskich czy Placu Unii Lubelskiej można dojść spacerem w kilkanaście minut.
Komunikacja miejska zapewnia szybki dostęp do centrum:
- linie autobusowe: 130, 141, 172, 222,
- linie tramwajowe: 4, 10, 14, 18, 35,
- metro: stacja Racławicka – ok. 10 minut pieszo.
DODATKOWE INFORMACJE:
- ogrzewanie gazowe,
- parkowanie przy ulicy,
- lokal jest dwustronny – okna wychodzą na północ oraz zachód,
- wysokość pomieszczeń – ponad 300 cm,
- pełna własność z księgą wieczystą.
Zapraszam 🙂
- Piętro: 1
- Powierzchnia użytkowa: 57.40
- Liczba pięter: 4







