Na sprzedaż 749.000zł - Mieszkanie
Mam przyjemność zaprezentować Państwu komfortowe, dwupokojowe mieszkanie o powierzchni 47,7 m², zlokalizowane na warszawskim Ursynowie – przy ul. Miklaszewskiego, zaledwie 500 metrów od stacji metra Imielin.
Lokal znajduje się na 5. piętrze w 6-piętrowym budynku wybudowanego w technologii RAMA H z windą z lat 80. XX wieku. Budynek jest po modernizacji, z odświeżonymi klatkami schodowymi oraz wymienionymi windami, co zapewnia komfort codziennego użytkowania.
ASPEKTY FORMALNE
Mieszkanie stanowi spółdzielcze-własnościowe prawo do lokalu z założoną Księgą Wieczystą. Istnieje możliwość finansowania zakupu za pomocą kredytu hipotecznego.
OPIS NIERUCHOMOŚCI
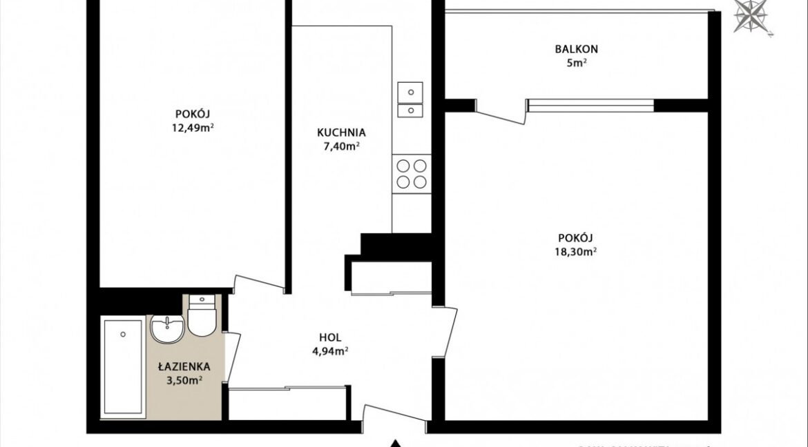
Mieszkanie o powierzchni 47,7 m² zostało zaprojektowane w sposób maksymalnie wykorzystujący dostępną przestrzeń i układ funkcjonalny. Składa się z dwóch osobnych pokoi, oddzielnej, widnej kuchni, łazienki z WC oraz przedpokoju. Taki rozkład sprawia, że nieruchomość może być idealną propozycją zarówno dla singla, pary, jak i rodziny 2+1 lub inwestora szukającego mieszkania pod wynajem.
Dużym atutem jest ekspozycja południowo-zachodnia, dzięki czemu w każdym pomieszczeniu jest bardzo jasno przez większość dnia.
Wysokość lokalu wynosi 251 cm.
Nieruchomość składa się z:
Pokój dzienny (18,30 m²) z wyjściem na balkon (ok. 5 m²)
Pokój sypialniany (12,49 m²)
Kuchnia oddzielna (7,40 m²) – wejście z przedpokoju
Łazienka z WC i wanną (3,5 m²)
Przedpokój (4,94 m²)
Do mieszkania przynależy również piwnica, która stanowi praktyczne uzupełnienie lokalu.
MIEJSCA PARKINGOWE – są dostępne tylko dla mieszkańców za szlabanem.
Dodatkowo właściciel ma możliwość korzystania z dodatkowego schowka znajdującego się na piętrze, dzielonego z jednym sąsiadem – co jest rzadko spotykanym, ale bardzo wygodnym rozwiązaniem.
MOŻLIWOŚCI INWESTYCYJNE
Prezentowana nieruchomość to również doskonała propozycja inwestycyjna, zarówno pod wynajem długoterminowy, jak i krótkoterminowy – dzięki przemyślanemu układowi pomieszczeń, dogodnej lokalizacji oraz bliskości komunikacji miejskiej (w tym metra).
Mieszkanie składa się z dwóch niezależnych pokoi oraz oddzielnej kuchni, co daje szerokie możliwości aranżacyjne.
OSOBY WYMAGAJĄCE DOCENIĄ
Funkcjonalny układ – dwa niezależne pokoje i osobna kuchnia.
Balkon + piwnica + schowek – dużo miejsca do przechowywania i odpoczynku.
Cicha lokalizacja – okna nie wychodzą na ulicę, idealne do pracy i relaksu.
Blisko metro Imielin (500 m) – świetna komunikacja z resztą miasta.
OKOLICA
Mieszkanie położone jest na zielonym i spokojnym osiedlu Imielin – w sercu Ursynowa. W promieniu kilku minut spacerem znajdziesz wszystko, czego potrzebujesz: sklepy, aptekę, szkołę podstawową, przedszkola, plac zabaw, kościół i liczne punkty usługowe.
Do stacji metra Imielin dojdziesz w zaledwie 5 minut (ok. 500 m), a pod blokiem znajdują się przystanki autobusowe w różnych kierunkach.
Dla aktywnych – w pobliżu tereny rekreacyjne, ścieżki rowerowe i parki. To idealne miejsce do życia – spokojne, a jednocześnie świetnie skomunikowane z centrum miasta.
SKLEPY I USŁUGI:
400 m – Biedronka
240 m – Żabka
260 m – Apteka
280 m – Paczkomat InPost/ePaka
650 m – Rossmann
EDUKACJA:
220 m – Przedszkole
500 m – Żłobek
230 m – Szkoła podstawowa
UCZELNIE:
900 m – Uczelnia Łukaszewski
1800 m – Szkoła Główna Gospodarstwa Wiejskiego w Warszawie
1100 m – Warszawska Szkoła Reklamy
KOMUNIKACJA
Mieszkanie jest doskonale skomunikowane z innymi częściami Warszawy:
180 m – Przystanek autobusowy (linie: 136, 163, 504, 148, 179, 185, 319)
500 m – Metro Imielin
18 minut samochodem do centrum Warszawy
PODSUMOWANIE
Funkcjonalne, dwupokojowe mieszkanie z balkonem na Ursynowie – idealne zarówno do zamieszkania, jak i pod inwestycję. Komfortowa lokalizacja tuż przy stacji metra Imielin, w cichym i zielonym otoczeniu. Budynek po modernizacji, bezpieczny i zadbany. Do mieszkania przynależy piwnica oraz dodatkowy schowek. Doskonała propozycja dla osób ceniących wygodę, spokój i łatwy dostęp do pełnej infrastruktury miejskiej.
- Piętro: 5
- Powierzchnia użytkowa: 47.70
- Liczba pięter: 6













