Na sprzedaż 722.000zł - Mieszkanie
Posiadam na sprzedaż 2-pokojowe mieszkanie znajdujące się przy ul. Górczewskiej 200C tuż przy stacji metra.
Mieszkanie znajduje się na 6 piętrze w 14 piętrowym bloku.
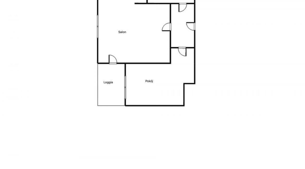
Nieruchomość składa się z:
-salonu z aneksem kuchennym z którego jest wyście na balkon.
-sypialni
-łazienki z wanną
-przedpokoju.
Budynek znajduję się w świetnej lokalizacji przy skrzyżowaniu ul. Powstańców Śląskich z ul. Górczewską
Tuż przy budynku jest Galeria handlowa, oraz stacja metra.
Mieszkanie posiada K.W można posiłkować się kredytem.
Zapraszam po więcej informacji.
- Piętro: 6
- Liczba pięter: 14













