Na sprzedaż 1.248.000zł - Dom
Zachęcam do zapoznania się z ofertą sprzedaży bliźniaka położonego w miejscowości Adamów pod Milanówkiem. Brak PCC oraz prowizji dla biura nieruchomości.
Dom położony na działce 671,5 mkw. w otoczeniu zabudowy jednorodzinnej.
Lokal o powierzchni użytkowej 149,43 mkw. składa się:
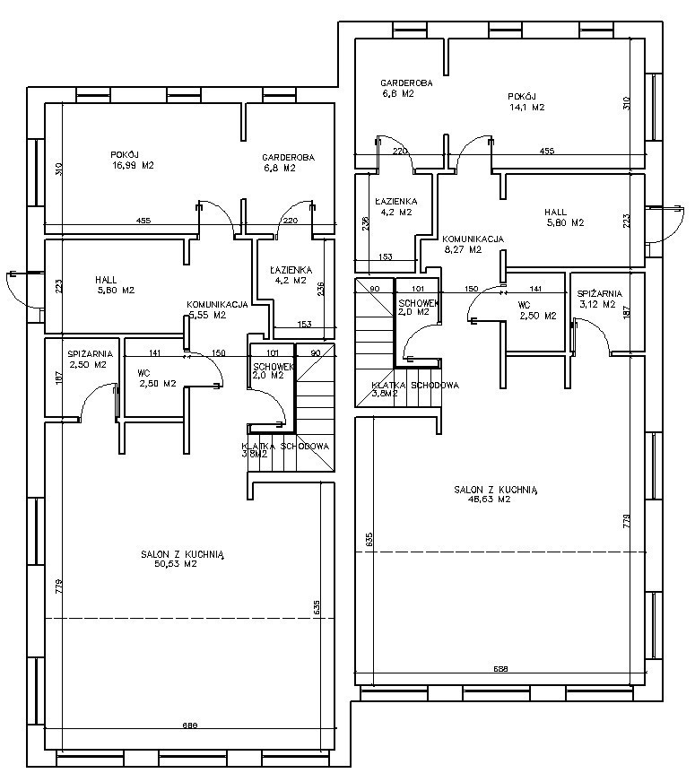
PARTER
- Salon z kuchnią 50,53 mkw. (wysokość salonu około 6,5 metra)
- Spiżarnia 2,5 mkw.
- WC 2,5 mkw.
- Hol 5,8 mkw.
- Komunikacja 5,55 mkw.
- Schowek 2,0 mkw.
- Sypialnia główna 16,99 mkw.
- Garderoba 4,2 mkw.
- Łazienka 4,2 mkw.
- Klatka schodowa 3,8 mkw.
- Łącznie 100,67
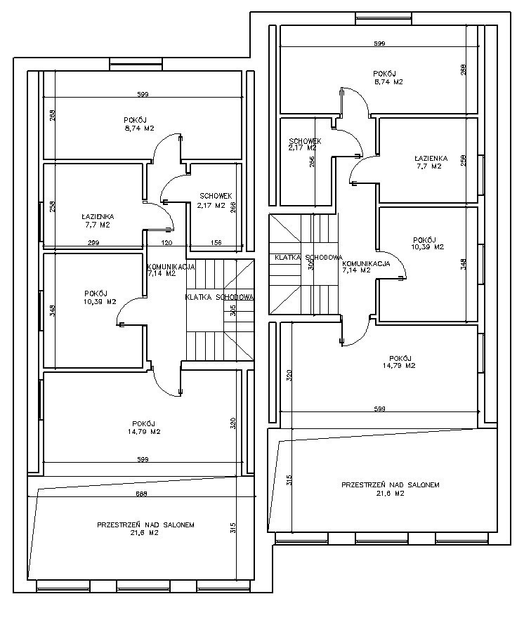
Piętro
- Komunikacja 7,14 mkw.
- Łazienka z oknem 7,7 mkw.
- Sypialnia 10,39 mkw.
- Sypialnia 8,79 mkw.
- Antresola 14 mkw.
- Łącznie 48,76 mkw.
Możliwość zmiany układu pomieszczeń przez dewelopera na życzenie klienta.
Garaż wolnostojący dwu stanowiskowy o powierzchni 30 MKW.
STANDARD WYKOŃCZENIA BUDYNKU:
-Budynek murowany w technologii tradycyjnej, ze stropodachem żelbetowym.
-Ściany konstrukcyjne wykonane z pustaka ceramicznego z elementami żelbetowymi.
-Izolacja ścian zewnętrznych: styropian grafitowy 22cm
-Izolacja termiczna posadzki: 20cm styropian podłogowy
-Izolacja ścian fundamentowych: 22cm
-Strop żelbetowy z warstwą ocieplenia: 40cm
-Okna Aluminiowe, z ciepłą ramką, 3-szybowe, z ciepłym montażem
-Drzwi wejściowe ocieplane: Wiśniowski lub Hörmann
-Elewacja wykonana z tynku silikonowego, łatwo zmywalnego (opcjonalnie z deski elewacyjnej)
-Ściany działowe murowane z bloczka silikatowego lub gazobetonu, tynkowane.
-Tynki wewnętrzne Knauf, mineralne maszynowe
INSTALACJE:
Oferta obejmuje budynek w stanie deweloperskim, wraz ze wszystkimi niezbędnymi instalacjami:
-elektryczna
-hydrauliczna
-wodno-kanalizacyjna
-centralnego ogrzewanie
-wentylacyjna (rekuperacja)
-pompa ciepła
-ogrzewanie podłogowe
-możliwość zamontowania klimatyzacji na życzenie klienta
TEREN:
-Teren ogrodzony i uporządkowany
-Dojścia i dojazd do budynku wykonane z kostki betonowej
-Brama wjazdowa przesuwna z napędem plus furtka.
-możliwość wykonania ogrodu, nawodnienia i oświetlenia ogrodowego.
Miłe sąsiedztwo, spokojna okolica.
Milanówek PKP – 4km (5min)
Grodzisk PKP – 5km (5min)
PKiN – 35 km (30 min)
Bardzo dobry dojazd do Warszawy położoną niedaleko trasą A2. W najbliższej okolicy Grodzisk MAZ i Milanówek, w którym znajdują się liczne sklepy, szkoły, ośrodek zdrowia, apteki oraz inne obiekty usługowe.
Bezpieczny zakup
• zaufany deweloper
Stan prawny pełna własność zakup od dewelopera brak PCC.
Planowane oddanie 1 Lipiec 2025.
Serdecznie zapraszam na prezentację!
- Powierzchnia użytkowa: 150.00
- Powierzchnia działki: 671.50
- Liczba pięter: 2















